
内山ビル2階 詳細
お気に入り
追加済み
物件画像を詳しく見る

本町通りの貸事務所です!
物件概要
エアコン2台付き♪
-
物件コード
00182-100044
-
物件名
内山ビル2階
-
交通
駅:妙高はねうまライン 高田駅から徒歩6分
-
所在地
新潟県上越市本町5丁目3-26内山ビル2階
物件へのルート表示
-
物件種別
事務所
-
総戸数
-
-
構造
鉄骨
-
階建
地上4階建
-
所在階/階数
2階/4階
-
号室
-
-
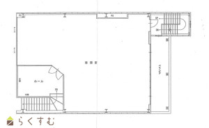
専有面積
132.24㎡
/40坪
-
方位
-
-
間取り
-
-
賃料
8.8万円/月
-
管理費
-
-
礼金
-
-
敷金
2ヶ月
-
共益費
4,400円
-
ほか初期費用
-
-
その他諸費用
-
-
更新料
20,000円
(2年)
-
火災(家財)保険
20,000円
-
駐車場
-
-
町内費
-
-
バイク料金
-
-
鍵交換費
-
-
清掃料
-
-
更新事務手数料
-
-
保証区分
連帯保証人+保証会社
-
保証会社
区分:加入要
保証会社名:その他
(ジェイリース)
月額賃料等総額の100%
-
連帯保証人
[区分]
要
-
-
仲介手数料
88,000円
-
手数料負担割合
貸主:-%
借主:-%
-
手数料配分割合
元付:-%
客付:-%
-
築年月
1974年9月(築51年)
-
利用制限
法人:相談
-
学校区
大町小学校(209m)・城東中学校(1,436m)
-
設備
2階以上、エアコン
-
入居時期
相談
-
取引態様
仲介
-
情報登録日
2025/01/20
-
次回更新予定日
2025/12/31
備考
取扱い会社
株式会社アール ミニミニFC上越大通り店
Copyright (C) 株式会社 コモンライフ・コーポレーション. All Rights Reserved.
不動産検索サイト「らくすむ」及び関連サイトに記載の不動産情報は、会員規約に則り、情報提供会社様の責任のもとに発信されております。
不動産の賃借、購入に関しては賃借者、購入者ご自身が情報を確認され、会社企業様から説明を受けられたうえで判断をお願いいたします。
不動産検索サイト「らくすむ」及び関連サイトに記載の不動産情報、写真、デザイン、コンテンツなどの無断転載・転用・複製など禁止します。