
川崎 新築住宅 詳細
お気に入り
追加済み
物件画像を詳しく見る

30.7坪に「欲しい」がつまった新築住宅
物件概要
「耐震等級3」 「セルロースファイバー断熱」 「C値0.3㎠/㎡」
-
物件コード
00169-200018
-
物件名
川崎 新築住宅
-
交通
駅:信越線 長岡駅から徒歩26分、バス:東川崎三叉路から徒歩2分
-
所在地
新潟県長岡市川崎3丁目2191-2
物件へのルート表示
-
物件種別
新築一戸建て
-
構造
木造
-
階建
地上2階建
-
建ぺい率/容積率
60%/200%
-
建物面積
101.7㎡
/30.76坪
-
土地面積
236.63㎡
/71.58坪
-
築年月
2025年7月(築5ヶ月)
-
入居時期
相談
-
用途地域
第2種中高層住居専用地域
-
地目
宅地
-
都市計画
市街化区域
-
形状
間口 23.89m × 奥行 18.3m
-
道路
市道178号 幅員4.4m
-
私道
-
-
その他の制限
-
物件詳細情報
-
所在階/階数
-
-
号室
-
-
販売価格
34,600,000円
-
方位
南東
-
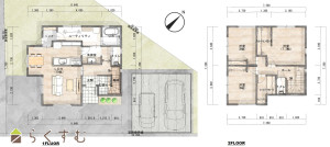
間取り
3LDK (洋室:6、6、7.5)、LDK15
-
専有面積
-
-
バルコニー面積
-
-
その他面積
-
-
駐車場
-
-
管理費
-
-
修繕積立金
-
-
現況
-
仲介手数料
なし
-
利用制限
-
-
学校区
川崎小学校(1,012m)・東北中学校(552m)
-
設備
角地、日当り良好、設計住宅性能評価付き、耐震構造、BELS/省エネ基準適合認定建物、瑕疵担保保険付き、建物確認・完了検査済証あり、LDK15畳以上、全室フローリング、駐車場3台以上、南向き、TVインターホン、システムキッチン、IHクッキングヒーター、食器洗浄乾燥機、3口コンロ、追いだき機能付き、バス1坪以上、温水洗浄便座、シャワー付き洗面台、エアコン、24時間換気システム、省エネ給湯、高気密高断熱住宅、都市ガス、上水道、下水道、電気、ウォークインクローゼット、全居室収納あり、シューズインクローゼット、BS端子、照明器具付き
-
取引態様
売主
-
情報登録日
2025/08/16
-
次回更新予定日
2026/01/02
-
取引条件有効期限
2025/12/06
備考
■玄関シューズクローク■食洗機付キッチン■造り付洗面化粧台■トイレ個別手洗■1階サンルーム■パントリー■2台用カーポート+2台 計4台駐車可
取扱い会社
株式会社 ハーティーホーム
Copyright (C) 株式会社 コモンライフ・コーポレーション. All Rights Reserved.
不動産検索サイト「らくすむ」及び関連サイトに記載の不動産情報は、会員規約に則り、情報提供会社様の責任のもとに発信されております。
不動産の賃借、購入に関しては賃借者、購入者ご自身が情報を確認され、会社企業様から説明を受けられたうえで判断をお願いいたします。
不動産検索サイト「らくすむ」及び関連サイトに記載の不動産情報、写真、デザイン、コンテンツなどの無断転載・転用・複製など禁止します。