売買陽光台モデルハウス【ホリゾンタル】見学可 詳細
お気に入り


伸びやかな水平ラインを強調した、心安らぐ安定感のある外観

決して色褪せることのない、流行に左右されないデザイン

幻想的な光が美しさを引き立てる

外壁と同じタイルを玄関内にも採用

自然光をたっぷりと採り込み、明るく開放感に包まれるLDK

高さにメリハリをつけることで空間をより広く感じることが出来る

家族が顔を合わせやすいリビング階段

天井に無垢の木をあしらい、上質な雰囲気を楽しめる

リビングの壁は天然石を模したデザインウォール

落ち着いたコーディネートで色褪せることのない美しさを創出

見せる収納を楽しめる造作カウンター

非日常を感じることのできるホテルライクな洗面

光と影が織りなす美しさも計算に入れて設計

アクセントクロスが特徴的な2階トイレ

ダーク色でまとめ上げたシックな浴室

外との繋がりを感じることのできるウッドデッキ

視界が斜めに抜ける特徴的な窓

間接照明で主寝室に特別感を

インナーガレージ直結型の玄関

物件画像を詳しく見る
【10/1~大幅価格改定!!】4,800万円→4,300万円   ◆形態と機能がひとつになった、シンプルで美しい住まい
物件概要
「有機的建築」の思想が息づく至高の空間
  • 物件コード 00130-200009
  • 物件名 陽光台モデルハウス【ホリゾンタル】見学可
  • 交通 駅:信越線 来迎寺駅から徒歩94分、バス:陽光台3丁目から徒歩6分
  • 所在地 新潟県長岡市陽光台4丁目1379-118 物件へのルート表示
  • 物件種別 新築一戸建て
  • 構造 木造
  • 階建 地上2階建
  • 建ぺい率/容積率 60%/200%
  • 建物面積 118.7㎡ /35.9坪
  • 土地面積 205.97㎡ /62.3坪
  • 築年月 2021年10月(築4年)
  • 入居時期 相談
  • 用途地域 第1種中高層住居専用地域
  • 地目 宅地  (現状:宅地)
  • 都市計画 市街化区域
  • 形状 間口 14.71m × 奥行 14.64m
  • 道路 南側市道 幅員8m、東側市道 幅員8m
  • 私道 -
  • その他の制限 -
物件詳細情報
  • 所在階/階数 -
  • 号室 -
  • 販売価格 43,000,000円
  • 方位 南東
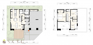
  • 間取り 3LDK (洋室:8.7、6.0、5.5)、(LDK 22.0)、インナーガレージ 28.71㎡(8.68坪)
  • 専有面積 -
  • バルコニー面積 -
  • その他面積 -
  • 駐車場 -
  • 管理費 -
  • 修繕積立金 -
  • 現況 指定なし
  • 仲介手数料 なし
  • 利用制限 -
  • 学校区 青葉台小学校(1,337m)・青葉台中学校(1,948m)
  • 設備 角地、前面道路6m以上、日当り良好、閑静な住宅街、LDK15畳以上、全室フローリング、駐車場3台以上、南向き、庭あり、TVインターホン、複層ガラス、カウンターキッチン、IHクッキングヒーター、食器洗浄乾燥機、追いだき機能付き、バス1坪以上、温水洗浄便座、エアコン、24時間換気システム、オール電化、ウッドデッキ・テラス、上水道、下水道、電気、ウォークインクローゼット、全居室収納あり、即引き渡し可能
  • 取引態様 売主
  • 情報登録日 2023/10/23
  • 次回更新予定日 2025/12/31
  • 取引条件有効期限 2023/10/31
備考
本当に良いデザインは決して色褪せることはありません。流行に左右されない普遍的な家、心から満足できる上質な住まいをご体感ください。
取扱い会社
株式会社 空間クリエイティブ
  • TEL 0258-38-5488
  • 所在地 新潟県長岡市三和1-1-24
  • 交通 長岡駅
  • 営業時間 9:00~18:00/定休日:土・日・祝
  • 免許番号 新潟県知事(4)第4601号
  • 所属団体名 全日本不動産協会 新潟県本部
  • 取引態様 売主
Copyright (C) 株式会社 コモンライフ・コーポレーション. All Rights Reserved.
不動産検索サイト「らくすむ」及び関連サイトに記載の不動産情報は、会員規約に則り、情報提供会社様の責任のもとに発信されております。
不動産の賃借、購入に関しては賃借者、購入者ご自身が情報を確認され、会社企業様から説明を受けられたうえで判断をお願いいたします。
不動産検索サイト「らくすむ」及び関連サイトに記載の不動産情報、写真、デザイン、コンテンツなどの無断転載・転用・複製など禁止します。