
ADI福住ビル 詳細
お気に入り
追加済み
物件画像を詳しく見る

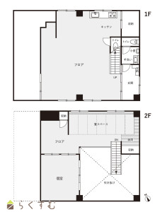
1階フリースペース+2階個室 ◆事務所利用や様々な用途に最適な多機能レイアウト◆
物件概要
-
賃料
16.5万円/月
-
管理費
なし
-
敷/礼
2ヶ月/
1ヶ月
-
間取り
-
-
広さ
152.24㎡
/46.05坪
-
階建
地上2階建
-
築年数
1971年6月(築54年)
-
種別
事務所
-
住所
新潟県長岡市福住2丁目4-44
物件へのルート表示
-
交通
駅:上越新幹線 長岡駅から徒歩9分
◇◆収納充実・水回り完備。 すぐに使える長岡駅近オフィス◇◆
-
物件コード
00127-100040
-
物件名
ADI福住ビル
-
交通
駅:上越新幹線 長岡駅から徒歩9分
-
所在地
新潟県長岡市福住2丁目4-44
物件へのルート表示
-
物件種別
事務所
-
総戸数
-
-
構造
鉄筋コン
-
階建
地上2階建
-
所在階/階数
-
-
号室
-
-
専有面積
152.24㎡
/46.05坪
-
方位
-
-
間取り
-
-
賃料
16.5万円/月
-
管理費
-
-
礼金
1ヶ月
-
敷金
2ヶ月
-
共益費
3,300円
-
ほか初期費用
-
-
その他諸費用
-
-
更新料
-
-
火災(家財)保険
-
-
駐車場
3台駐車可能。賃料込み。
-
町内費
-
-
バイク料金
-
-
鍵交換費
-
-
清掃料
-
-
更新事務手数料
-
-
保証区分
連帯保証人+緊急連絡先
-
保証会社
区分:指定なし
-
-
連帯保証人
[区分]
要
-
-
仲介手数料
-
-
手数料負担割合
貸主:-%
借主:-%
-
手数料配分割合
元付:-%
客付:-%
-
築年月
1971年6月(築54年)
-
利用制限
法人:可、事務所利用:可
-
学校区
阪之上小学校(451m)・東北中学校(1,281m)
-
設備
融雪設備あり、エアコン、男女トイレ別、即引き渡し可、駐車場あり
-
入居時期
即入居可
-
取引態様
貸主
-
情報登録日
2026/03/04
-
次回更新予定日
2026/05/15
備考
取扱い会社
ADI 株式会社
Copyright (C) 株式会社 コモンライフ・コーポレーション. All Rights Reserved.
不動産検索サイト「らくすむ」及び関連サイトに記載の不動産情報は、会員規約に則り、情報提供会社様の責任のもとに発信されております。
不動産の賃借、購入に関しては賃借者、購入者ご自身が情報を確認され、会社企業様から説明を受けられたうえで判断をお願いいたします。
不動産検索サイト「らくすむ」及び関連サイトに記載の不動産情報、写真、デザイン、コンテンツなどの無断転載・転用・複製など禁止します。