
コスモ駅前ビル(1棟貸し 個室多数あり) 詳細
お気に入り
追加済み
物件画像を詳しく見る

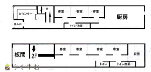
駅ちか物件、1棟貸しです。個室多数あり
物件概要
-
賃料
18.7万円/月
-
管理費
9,350円/月
-
敷/礼
3ヶ月/
1ヶ月
-
間取り
-
-
広さ
89.25㎡
/26.99坪
-
階建
地上2階建
-
築年数
不詳
-
種別
店舗
-
住所
新潟県長岡市大手通1丁目3-13
物件へのルート表示
-
交通
駅:上越新幹線 長岡駅から徒歩3分、バス:長岡駅前から徒歩3分
駅ちか物件、1棟貸しです。個室多数あり
-
物件コード
00109-100050
-
物件名
コスモ駅前ビル(1棟貸し 個室多数あり)
-
交通
駅:上越新幹線 長岡駅から徒歩3分、バス:長岡駅前から徒歩3分
-
所在地
新潟県長岡市大手通1丁目3-13
物件へのルート表示
-
物件種別
店舗
-
総戸数
-
-
構造
木造
-
階建
地上2階建
-
所在階/階数
-
-
号室
-
-
専有面積
89.25㎡
/26.99坪
-
方位
-
-
間取り
-
-
賃料
18.7万円/月
-
管理費
9,350円/月
賃料の5%
-
礼金
1ヶ月
-
敷金
3ヶ月
-
共益費
-
-
ほか初期費用
-
-
その他諸費用
-
-
更新料
-
-
火災(家財)保険
加入要
-
駐車場
-
-
町内費
各自支払い
-
バイク料金
-
-
鍵交換費
-
-
清掃料
-
-
更新事務手数料
-
-
保証区分
連帯保証人+保証会社
-
保証会社
区分:加入要
保証会社名:その他
(CIZにいがた)
-
-
家賃保証金
187,000円
-
連帯保証人
[区分]
要
-
-
仲介手数料
187,000円
-
手数料負担割合
貸主:-%
借主:100%
-
手数料配分割合
元付:50%
客付:50%
-
築年月
不詳
-
利用制限
-
-
学校区
阪之上小学校(441m)・東中学校(1,466m)
-
設備
-
-
入居時期
即入居可
-
取引態様
仲介
-
情報登録日
2024/12/19
-
次回更新予定日
2026/04/18
備考
現況有姿で引渡し致します。
取扱い会社
長生不動産
Copyright (C) 株式会社 コモンライフ・コーポレーション. All Rights Reserved.
不動産検索サイト「らくすむ」及び関連サイトに記載の不動産情報は、会員規約に則り、情報提供会社様の責任のもとに発信されております。
不動産の賃借、購入に関しては賃借者、購入者ご自身が情報を確認され、会社企業様から説明を受けられたうえで判断をお願いいたします。
不動産検索サイト「らくすむ」及び関連サイトに記載の不動産情報、写真、デザイン、コンテンツなどの無断転載・転用・複製など禁止します。