
三条市条南町 分譲③ 詳細
お気に入り
追加済み
物件画像を詳しく見る
物件概要
-
物件コード
00105-200638
-
物件名
三条市条南町 分譲③
-
交通
駅:信越線 三条駅から徒歩16分、バス:なでしこ青空保育園から徒歩3分
-
所在地
新潟県三条市条南町2-2
物件へのルート表示
-
物件種別
売土地・分譲地
-
物件区分
売土地
-
構造
-
-
階建
-
-
建ぺい率/容積率
60%/200%
-
建物面積
-
-
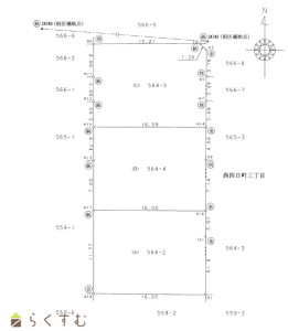
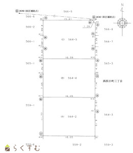
土地面積
189.72㎡
/57.39坪
-
築年月
-
-
入居時期
相談
-
用途地域
第1種住居地域
-
地目
宅地
-
都市計画
非線引き都市計画区域
-
形状
間口 11.86m × 奥行 16.05m
-
道路
北側 公道 約4m 東側 公道 約4m
-
私道
-
-
その他の制限
-
物件詳細情報
-
所在階/階数
-
-
号室
-
-
販売価格
4,591,200円
-
方位
-
-
間取り
-
-
専有面積
-
-
バルコニー面積
-
-
その他面積
-
-
駐車場
-
-
管理費
-
-
修繕積立金
-
-
現況
-
仲介手数料
330,000円
-
利用制限
-
-
学校区
嵐南小学校(725m)・第一中学校(484m)
-
設備
整形地、更地、所有権、都市ガス(宅地内)、上水道(宅地内)
-
取引態様
専属専任
-
情報登録日
2025/01/06
-
次回更新予定日
2025/12/30
-
取引条件有効期限
2023/09/30
備考
前面道路 融雪あり
取扱い会社
ハウスドゥ 長岡中央店
Copyright (C) 株式会社 コモンライフ・コーポレーション. All Rights Reserved.
不動産検索サイト「らくすむ」及び関連サイトに記載の不動産情報は、会員規約に則り、情報提供会社様の責任のもとに発信されております。
不動産の賃借、購入に関しては賃借者、購入者ご自身が情報を確認され、会社企業様から説明を受けられたうえで判断をお願いいたします。
不動産検索サイト「らくすむ」及び関連サイトに記載の不動産情報、写真、デザイン、コンテンツなどの無断転載・転用・複製など禁止します。