売買長岡市 大島新町1丁目新築分譲住宅 詳細
お気に入り


お家の外壁は、落ち着きのあるブラウン色に仕上げました。

家事をスムーズにするために、家事動線を1直線にまとめました!

内観も外観に合わせて、ナチュラルテイストに。

LIXILの対面型キッチンです。シンプルで使いやすいです。

LIXILのアライズです。1坪のエコベンチタイプです。

三面鏡タイプの洗面台です。

LIXILの1階トイレ。1階、2階にあります。

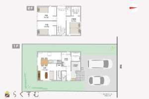
家事動線を考えた間取りです。

14.5帖のLDKです。

南向きの掃き出し窓から光が入ります。

カーテンレール、カーテン付きです。

LDKにエアコンがついています。

玄関は窓があり、明るいです。

2帖の広さの土間収納があります。

洗面室は3帖の広さがあり、サンルームとしてつかえます。

2階ホールは物干し金物があり洗濯物干し場になります。

6帖の主寝室にはWICがついています。

たっぷり収納できるウォークインクローゼットです。

2階にもトイレがついています。

2階6帖の洋室です。

2階6帖の洋室です。

地図画像

物件画像を詳しく見る
【10/2価格改定しました】 徒歩1分の土手から長岡花火が見えます!アピタやイオンまで車で5分圏内!買い物に便利な立地です!大島小学校区です。前面道路は消雪パイプがあり冬場も安心!
物件概要
大島小学校まで徒歩7分、大島中学校まで徒歩15分、公園やこどもえんが徒歩10分!バス停徒歩5分!通学に便利な立地です。
  • 物件コード 00101-200403
  • 物件名 長岡市 大島新町1丁目新築分譲住宅
  • 交通 駅:上越新幹線 長岡駅から徒歩35分、バス:長生橋西詰から徒歩5分
  • 所在地 新潟県長岡市大島新町1丁目2046番1、2046番2 物件へのルート表示
  • 物件種別 新築一戸建て
  • 構造 木造
  • 階建 地上1階建
  • 建ぺい率/容積率 60%/200%
  • 建物面積 87.77㎡ /26.55坪
  • 土地面積 165.28㎡ /49.99坪
  • 築年月 2025年3月(築9ヶ月)
  • 入居時期 随時入居(引き渡し)可
  • 用途地域 第1種中高層住居専用地域
  • 地目 宅地  (現状:宅地)
  • 都市計画 市街化区域
  • 形状 間口 9.1m × 奥行 18.1m
  • 道路 北側 市道 幅員5.7m 消雪パイプ有
  • 私道 -
  • その他の制限 -
物件詳細情報
  • 所在階/階数 -
  • 号室 -
  • 販売価格 24,900,000円
  • 方位
  • 間取り 3LDK (洋室:6、6、6)、LDK14.5帖、洗面室3帖、土間収納2帖、WIC2帖
  • 専有面積 -
  • バルコニー面積 -
  • その他面積 -
  • 駐車場 -
  • 管理費 -
  • 修繕積立金 -
  • 現況 指定なし
  • 仲介手数料 なし
  • 消雪組合加入金 200,000円
    消雪組合費:10,000円/年
  • 利用制限 -
  • 学校区 大島小学校(500m)・大島中学校(1,200m)
  • 設備 整形地、閑静な住宅街、BELS/省エネ基準適合認定建物、瑕疵担保保険付き、フラット35S適合、全室フローリング、駐車場2台以上、庭あり、TVインターホン、複層ガラス、ディンプルキー、システムキッチン、カウンターキッチン、IHクッキングヒーター、追いだき機能付き、バス1坪以上、温水洗浄便座、シャワー付き洗面台、エアコン、24時間換気システム、全室エアコン、オール電化、省エネ給湯、上水道、下水道、電気、ウォークインクローゼット、全居室収納あり、シューズインクローゼット、シューズBOX、照明器具付き
  • 取引態様 売主
  • 情報登録日 2025/12/12
  • 次回更新予定日 2025/12/30
  • 取引条件有効期限 2026/12/31
備考
↓ おすすめポイント ↓

安心のご契約!
~ニコニコ住宅の建物価格について~

表示価格には、
「土地」「建物」
「瑕疵担保責任保険」
「長期保証」「クリーニング費用」
「建物内の展示物撤収費用」
がきちんと含まれますのでご安心ください。

家事の時間を短縮できるよう、
家事楽にこだわった間取りです。

アウトドア用品や除雪道具も収納できる!
1坪の広々土間収納があります。

長岡の夏といったら、長岡花火!
長岡花火が、徒歩1分の土手から見れちゃいます!

通学や買い物に便利な立地です!

・リバーサイド千秋 車4分
・イオン長岡 車3分
・原信古正寺店 車3分
・大島小学校 徒歩7分
・大島中学校 徒歩15分
・大島公園 徒歩5分
・大島こどもえん 徒歩8分

LDKエアコン、カーテン、2階トイレ付です!

建売とは思えない!
手厚いアフターサービスが自慢の家

最長60年長期保証の家:
地盤・基礎・構造・雨漏りは基本保証20年
メンテナンス実施で最長60年

設備保証10年:
ユニットバス・システムキッチン・給湯設備・多機能便座

無料点検:10年間で4回実施

緊急駆けつけサービス:24時間365日10年間家事の時間を短縮できるよう、
家事楽にこだわった間取りです。

建築確認番号 第R06-1799号
取扱い会社
ダイエープロビス株式会社
  • TEL 0258-24-1110
  • 所在地 新潟県長岡市宝4丁目2番地25
  • 交通 「宝4丁目」バス停より徒歩2分
  • 営業時間 8:30 ~ 17:30/定休日:土曜・日曜・祝日
  • 免許番号 新潟県知事(13)1619号
  • 所属団体名 新潟県宅地建物取引業協会 長岡支部
  • 取引態様 売主
Copyright (C) 株式会社 コモンライフ・コーポレーション. All Rights Reserved.
不動産検索サイト「らくすむ」及び関連サイトに記載の不動産情報は、会員規約に則り、情報提供会社様の責任のもとに発信されております。
不動産の賃借、購入に関しては賃借者、購入者ご自身が情報を確認され、会社企業様から説明を受けられたうえで判断をお願いいたします。
不動産検索サイト「らくすむ」及び関連サイトに記載の不動産情報、写真、デザイン、コンテンツなどの無断転載・転用・複製など禁止します。