
【ミサワホームのスムストック:高床式5LDK】小国町桐沢 詳細
お気に入り
追加済み
物件画像を詳しく見る

令和7年4月20日価格改定 ミサワホーム施工スムストック住宅 落雪高床式3階建てなので降雪時期も安心です
物件概要
アフターメンテナンスも継続します。田舎暮らしにも最適です。
-
物件コード
00080-200194
-
物件名
【ミサワホームのスムストック:高床式5LDK】小国町桐沢
-
交通
バス:法坂から徒歩14分
-
所在地
新潟県長岡市小国町桐沢1825-3
物件へのルート表示
-
物件種別
中古一戸建て
-
構造
木造
-
階建
地上3階建
-
建ぺい率/容積率
70%/200%
-
建物面積
205.14㎡
/62.05坪
-
土地面積
314.42㎡
/95.11坪
-
築年月
2000年11月(築25年)
-
入居時期
相談
-
用途地域
用途の指定のない地域
-
地目
宅地
-
都市計画
都市計画区域外
-
形状
-
-
道路
北側11M県道(消雪あり)
-
私道
-
-
その他の制限
-
物件詳細情報
-
所在階/階数
-
-
号室
-
-
販売価格
8,500,000円
-
方位
指定なし
-
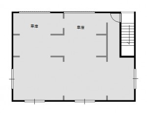
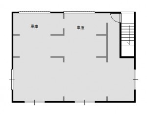
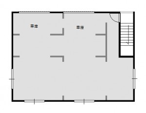
間取り
5LDK
-
専有面積
-
-
バルコニー面積
-
-
その他面積
68.72㎡
/20.78坪
高床
-
駐車場
-
-
管理費
-
-
修繕積立金
-
-
現況
空家
-
仲介手数料
346,500円
-
利用制限
-
-
学校区
小国小学校(1,665m)・小国中学校(1,868m)
-
設備
日当り良好、耐震構造、駐車3台以上可能、複層ガラス、システムキッチン、追いだき機能付き、バス1坪以上、温水洗浄便座、トイレ2か所以上、シャワー付き洗面台、24時間換気システム、ルーフバルコニー、LPG、上水道、下水道、ウォークインクローゼット、全居室収納あり、BS端子、別荘、田舎暮らし
-
取引態様
専任
-
情報登録日
2025/05/03
-
次回更新予定日
2026/05/31
-
取引条件有効期限
2025/09/30
備考
取扱い会社
ミサワホーム北越 株式会社
Copyright (C) 株式会社 コモンライフ・コーポレーション. All Rights Reserved.
不動産検索サイト「らくすむ」及び関連サイトに記載の不動産情報は、会員規約に則り、情報提供会社様の責任のもとに発信されております。
不動産の賃借、購入に関しては賃借者、購入者ご自身が情報を確認され、会社企業様から説明を受けられたうえで判断をお願いいたします。
不動産検索サイト「らくすむ」及び関連サイトに記載の不動産情報、写真、デザイン、コンテンツなどの無断転載・転用・複製など禁止します。