賃貸ビストハウスⅡ 詳細
 105号室
お気に入り


外観

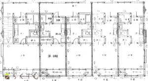
間取り

洋間

キッチン

バス

トイレ

サンルーム

クローゼット

玄関

地図画像

物件画像を詳しく見る
南向きサンルームつき!Wi-Fi無料!!
物件概要
  • 賃料
    3.3万円/月
  • 管理費
    なし
  • 敷/礼
    1ヶ月/ なし
  • 間取り
    1K (洋室:8)、サンルームつき
  • 広さ
    29.29㎡ /8.86坪
  • 階建
    地上2階建
  • 築年数
    1996年3月(築29年)
  • 種別
    アパート・マンション・一戸建て
  • 住所
    新潟県柏崎市堀2250-1 物件へのルート表示
  • 交通
    駅:信越線 茨目駅から徒歩44分、バス:新潟工科大学前から徒歩5分

月額4,400円で家電レンタル(テレビ・冷蔵庫・洗濯機・電子レンジ・ガスコンロ)可能!!
  • 物件コード 00079-100505
  • 物件名 ビストハウスⅡ
  • 交通 駅:信越線 茨目駅から徒歩44分、バス:新潟工科大学前から徒歩5分
  • 所在地 新潟県柏崎市堀2250-1 物件へのルート表示
  • 物件種別 アパート・マンション・一戸建て
  • 総戸数 12戸
  • 構造 木造
  • 階建 地上2階建
  • 所在階/階数 1階/2階
  • 号室 105号室
  • 専有面積 29.29㎡ /8.86坪
  • 方位 指定なし
  • 間取り 1K (洋室:8)、サンルームつき
  • 賃料 3.3万円/月
  • 管理費 -
  • 礼金 -
  • 敷金 1ヶ月
  • 共益費 4,000円
  • ほか初期費用 -
  • その他諸費用 -
  • 更新料 -
  • 火災(家財)保険 16,000円
    2年分
  • 駐車場 3,300円
  • 町内費 300円
  • バイク料金 -
  • 鍵交換費 -
  • 清掃料 -
  • 更新事務手数料 11,000円
  • 保証区分 連帯保証人のみ
  • 保証会社 区分:指定なし

    -
  • 連帯保証人 [区分]  要 -
  • 仲介手数料 36,300円
  • 手数料負担割合 貸主:0%   借主:100%
  • 手数料配分割合 元付:50%   客付:50%  
  • 築年月 1996年3月(築29年)
  • 利用制限 法人:可、学生:可、単身者:可、二人入居:不可、ペット:不可、楽器:不可、事務所利用:不可、ルームシェア:不可
  • 学校区 新道小学校(1,528m)・南中学校(954m)
  • 設備 閑静な住宅街、バス停近く、敷地内ゴミ置き場、駐輪場あり、南向き、角住居、バストイレ別、温水洗浄便座、エアコン、LPG、サンルーム、洗濯機置場 室内、クロゼット、BS端子・アンテナ、インターネット無料、各居室照明、保証会社利用可能、礼金不要、学生向け、一人暮らし・学生向け、家電付き、お勧め物件、柏崎 大学、新潟産業大学生におすすめ、新潟工科大学生におすすめ、早期契約物件(柏崎の大学向け※柏崎のみ)、退去予定物件(柏崎大学むけ※柏崎のみ)
  • 入居時期 令和8年4月以降
  • 取引態様 仲介
  • 情報登録日 2025/12/15
  • 次回更新予定日 2025/12/29
備考
取扱い会社
株式会社 アーク不動産
  • TEL 0257-22-6170
  • 所在地 新潟県柏崎市幸町3番26アークビル101
  • 交通 柏崎駅
  • 営業時間 9:00~17:30/定休日:土・日・祝日*3月は無休営業致します
  • 免許番号 新潟県知事(7)第4045号
  • 所属団体名 (公社)新潟県宅地建物取引業協会 柏崎支部
  • 取引態様 仲介
Copyright (C) 株式会社 コモンライフ・コーポレーション. All Rights Reserved.
不動産検索サイト「らくすむ」及び関連サイトに記載の不動産情報は、会員規約に則り、情報提供会社様の責任のもとに発信されております。
不動産の賃借、購入に関しては賃借者、購入者ご自身が情報を確認され、会社企業様から説明を受けられたうえで判断をお願いいたします。
不動産検索サイト「らくすむ」及び関連サイトに記載の不動産情報、写真、デザイン、コンテンツなどの無断転載・転用・複製など禁止します。