
柏崎市高柳中古住宅 詳細
お気に入り
追加済み
物件画像を詳しく見る
物件概要
-
物件コード
00063-200097
-
物件名
柏崎市高柳中古住宅
-
交通
駅:ほくほく線 まつだい駅から徒歩105分、バス:会沢南から徒歩90分
-
所在地
新潟県柏崎市高柳町門出2571
物件へのルート表示
-
物件種別
中古一戸建て
-
構造
木造
-
階建
地上1階建
-
建ぺい率/容積率
-
-
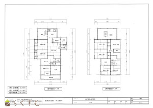
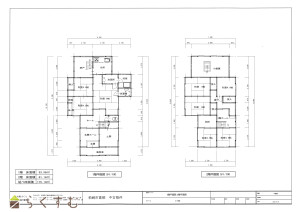
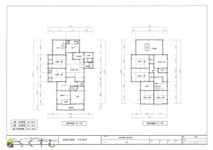
建物面積
107.33㎡
/32.46坪
-
土地面積
154.96㎡
/46.87坪
-
築年月
1974年1月(築52年)
-
入居時期
相談
-
用途地域
用途の指定のない地域
-
地目
宅地
-
都市計画
都市計画区域外
-
形状
間口 5.26m
-
道路
南側:町道
-
私道
-
-
その他の制限
-
物件詳細情報
-
所在階/階数
-
-
号室
-
-
販売価格
500,000円
-
方位
-
-
間取り
8K (和室:4.5畳、4.5畳、8畳、4.5畳、6畳、6畳、4.5畳、4.5畳)、納屋、小屋裏、倉庫あり
-
専有面積
-
-
バルコニー面積
-
-
その他面積
-
-
駐車場
-
-
管理費
-
-
修繕積立金
-
-
現況
空家
-
仲介手数料
330,000円
-
利用制限
-
-
学校区
鯖石小学校(13,403m)・第五中学校(12,064m)
-
設備
日当り良好、駐車2台可能、上水道、下水道、別荘、田舎暮らし
-
取引態様
一般
-
情報登録日
2025/08/08
-
次回更新予定日
2026/06/13
-
取引条件有効期限
2026/07/16
備考
現況有姿取引となります。
残置物あり。 残置物処分については要相談。
水まわり修理、 給湯機器入替必要、
倉庫(車1台)駐車可
取扱い会社
株式会社 山六木材
Copyright (C) 株式会社 コモンライフ・コーポレーション. All Rights Reserved.
不動産検索サイト「らくすむ」及び関連サイトに記載の不動産情報は、会員規約に則り、情報提供会社様の責任のもとに発信されております。
不動産の賃借、購入に関しては賃借者、購入者ご自身が情報を確認され、会社企業様から説明を受けられたうえで判断をお願いいたします。
不動産検索サイト「らくすむ」及び関連サイトに記載の不動産情報、写真、デザイン、コンテンツなどの無断転載・転用・複製など禁止します。