
出雲崎町上野山別荘 詳細
お気に入り
追加済み
物件画像を詳しく見る

高台から海が見わたせます! 自然豊かな環境です。
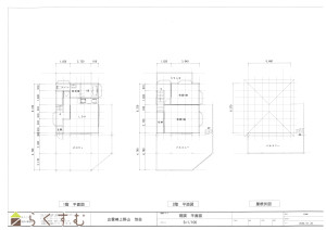
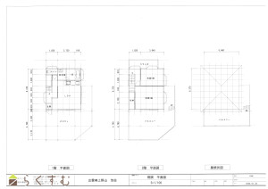
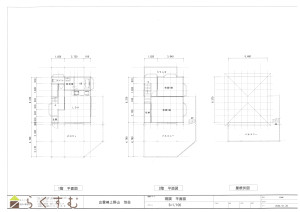
物件概要
-
物件コード
00063-200083
-
物件名
出雲崎町上野山別荘
-
交通
駅:越後線 出雲崎駅から徒歩52分
-
所在地
新潟県三島郡出雲崎町大字上野山字滝ノ上甲375番乙
物件へのルート表示
-
物件種別
中古一戸建て
-
構造
木造鉄筋コン
-
階建
地上2階建
-
建ぺい率/容積率
-
-
建物面積
69.56㎡
/21.04坪
-
土地面積
69.42㎡
/20.99坪
-
築年月
不詳
-
入居時期
相談
-
用途地域
用途の指定のない地域
-
地目
宅地
-
都市計画
都市計画区域外
-
形状
-
-
道路
町道 東側 鳴滝町上野山線
-
私道
-
-
その他の制限
-
物件詳細情報
-
所在階/階数
-
-
号室
-
-
販売価格
3,000,000円
-
方位
-
-
間取り
2DK (和室:6畳、10畳) (洋室:8)
-
専有面積
-
-
バルコニー面積
-
-
その他面積
-
-
駐車場
-
-
管理費
-
-
修繕積立金
-
-
現況
空家
-
仲介手数料
154,000円
-
利用制限
-
-
学校区
出雲崎小学校(2,315m)・出雲崎中学校(1,482m)
-
設備
高台に立地、日当り良好、LPG、上水道、下水道、別荘
-
取引態様
一般
-
情報登録日
2024/01/26
-
次回更新予定日
2026/06/12
-
取引条件有効期限
2024/03/23
備考
建物未登記、建築年:平成5年
駐車場なし
海側からは物件まで徒歩、車の通行できません。
町道鳴滝町上野山線は車(軽自動車)1台通行可能。
トイレ、洗面、ベランダ修繕必要。
取扱い会社
株式会社 山六木材
Copyright (C) 株式会社 コモンライフ・コーポレーション. All Rights Reserved.
不動産検索サイト「らくすむ」及び関連サイトに記載の不動産情報は、会員規約に則り、情報提供会社様の責任のもとに発信されております。
不動産の賃借、購入に関しては賃借者、購入者ご自身が情報を確認され、会社企業様から説明を受けられたうえで判断をお願いいたします。
不動産検索サイト「らくすむ」及び関連サイトに記載の不動産情報、写真、デザイン、コンテンツなどの無断転載・転用・複製など禁止します。