
◆売りマンション◆アパシティ東三条駅壱番館 詳細
403号室
お気に入り
追加済み
物件画像を詳しく見る

東三条駅徒歩約3分!対面キッチン!
物件概要
-
物件コード
00052-200268
-
物件名
◆売りマンション◆アパシティ東三条駅壱番館
-
交通
駅:信越線 東三条駅から徒歩3分、バス:神社庁前から徒歩3分
-
所在地
新潟県三条市東三条1丁目22番地10号
物件へのルート表示
-
物件種別
中古マンション
-
構造
鉄筋コン
-
階建
地上8階建
-
建ぺい率/容積率
60%/200%
-
建物面積
63.04㎡
/19.06坪
-
土地面積
-
-
築年月
2001年2月(築24年)
-
入居時期
相談
-
用途地域
第1種住居地域
-
地目
宅地 (現状:宅地)
-
都市計画
非線引き都市計画区域
-
形状
-
-
道路
南側:幅員8.8m 北東側:13.7m
-
私道
-
-
その他の制限
準防火地域
物件詳細情報
-
所在階/階数
4階/8階
-
号室
403号室
-
販売価格
14,980,000円
-
方位
南
-
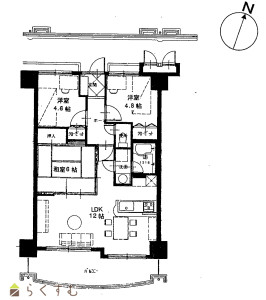
間取り
3LDK (和室:4.6畳、6畳) (洋室:4.8)、LDK12
-
専有面積
63.04㎡
/19.06坪
-
バルコニー面積
10.44㎡
/3.15坪
-
その他面積
-
-
駐車場
月額6000円
-
管理費
月額7,500円
-
修繕積立金
月額12,600円
-
現況
空家
-
仲介手数料
560,340円
-
温泉使用料
2,000円
-
利用制限
ペット:可
-
学校区
一ノ木戸小学校(1,300m)・第二中学校(1,300m)
-
設備
2階以上、日当り良好、最寄駅近く、エレベーター、宅配BOX、集会所、和室あり、バイク置き場、駐輪場、南向き、管理人常駐(日中)、セキュリティー良し、システムキッチン、対面式キッチン、2口コンロ、3口コンロ、温水洗浄便座、都市ガス、公営水道、下水道、全室収納あり、シューズBOX
-
取引態様
専任
-
情報登録日
2025/06/29
-
次回更新予定日
2026/01/01
-
取引条件有効期限
2026/03/01
備考
契約時一時金
■管理準備金100,000円■温泉採取許可申請料35,000円■修繕積立基金100,000円
取扱い会社
株式会社 ユタカ不動産
Copyright (C) 株式会社 コモンライフ・コーポレーション. All Rights Reserved.
不動産検索サイト「らくすむ」及び関連サイトに記載の不動産情報は、会員規約に則り、情報提供会社様の責任のもとに発信されております。
不動産の賃借、購入に関しては賃借者、購入者ご自身が情報を確認され、会社企業様から説明を受けられたうえで判断をお願いいたします。
不動産検索サイト「らくすむ」及び関連サイトに記載の不動産情報、写真、デザイン、コンテンツなどの無断転載・転用・複製など禁止します。