
アグロスビル 詳細
E号室
お気に入り
追加済み
物件画像を詳しく見る

ピアノ教室♪美容院♪ネイルサロン♪ジムの入った賑やかなビルです
物件概要
-
賃料
7.7万円/月
-
管理費
なし
-
敷/礼
2万円/
なし
-
間取り
-
-
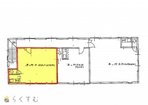
広さ
42.05㎡
/12.72坪
-
階建
地上2階建
-
築年数
1992年12月(築33年)
-
種別
事務所
-
住所
新潟県三条市東裏館2丁目6番5号
物件へのルート表示
-
交通
駅:弥彦線 北三条駅から徒歩6分、バス:西裏館から徒歩2分
来客用駐車場は他店舗共有で無料★
-
物件コード
00052-100179
-
物件名
アグロスビル
-
交通
駅:弥彦線 北三条駅から徒歩6分、バス:西裏館から徒歩2分
-
所在地
新潟県三条市東裏館2丁目6番5号
物件へのルート表示
-
物件種別
事務所
-
総戸数
-
-
構造
木造
-
階建
地上2階建
-
所在階/階数
2階/2階
-
号室
E号室
-
専有面積
42.05㎡
/12.72坪
-
方位
-
-
間取り
-
-
賃料
7.7万円/月
-
管理費
-
-
礼金
-
-
敷金
2万円
-
共益費
8,800円
-
ほか初期費用
-
-
その他諸費用
-
-
更新料
事務手数料22,000円
-
火災(家財)保険
加入必須
-
駐車場
従業員用は近隣にてお借りください。来客用は他店舗共有で無料です。
-
町内費
-
-
バイク料金
-
-
鍵交換費
-
-
清掃料
-
-
更新事務手数料
-
-
保証区分
連帯保証人+保証会社
-
保証会社
区分:加入要
保証会社名:その他
(ジェイリース株式会社)
初回保証料:月額総額の100%。
継続保証料:月額総額の10%(年)必須。
-
連帯保証人
[区分]
要
-
-
仲介手数料
77,000円
-
手数料負担割合
貸主:-%
借主:100%
-
手数料配分割合
元付:50%
客付:50%
-
築年月
1992年12月(築33年)
-
利用制限
-
-
学校区
裏館小学校(682m)・第三中学校(431m)
-
設備
最上階、2階以上、融雪設備あり、即引き渡し可、給湯、駐車場あり
-
入居時期
即入居可
-
取引態様
仲介
-
情報登録日
2025/12/15
-
次回更新予定日
2026/05/15
備考
・飲食店不可。
・只今、駐車場利用者様が多数の為、従業員のみ出入りの事務所利用もしくは予約制営業での業種利用に限らせて頂きます。
取扱い会社
株式会社 ユタカ不動産
Copyright (C) 株式会社 コモンライフ・コーポレーション. All Rights Reserved.
不動産検索サイト「らくすむ」及び関連サイトに記載の不動産情報は、会員規約に則り、情報提供会社様の責任のもとに発信されております。
不動産の賃借、購入に関しては賃借者、購入者ご自身が情報を確認され、会社企業様から説明を受けられたうえで判断をお願いいたします。
不動産検索サイト「らくすむ」及び関連サイトに記載の不動産情報、写真、デザイン、コンテンツなどの無断転載・転用・複製など禁止します。