
十日町市高田町2丁目 融雪井戸付き3階建て 詳細
お気に入り
追加済み
物件画像を詳しく見る

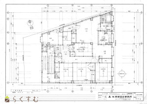
1階店舗・車庫3台 2階居住スペース 3階フリースペースです
物件概要
融雪井戸付きの3階建て住宅
-
物件コード
00044-200717
-
物件名
十日町市高田町2丁目 融雪井戸付き3階建て
-
交通
駅:飯山線 十日町駅から徒歩6分、バス:高田町二丁目から徒歩2分
-
所在地
新潟県十日町市高田町二丁目277-4
物件へのルート表示
-
物件種別
中古一戸建て
-
構造
鉄骨
-
階建
地上3階建
-
建ぺい率/容積率
80%/400%
-
建物面積
495.99㎡
/150.03坪
-
土地面積
227.76㎡
/68.89坪
-
築年月
1992年5月(築34年)
-
入居時期
随時入居(引き渡し)可
-
用途地域
商業地域
-
地目
宅地
-
都市計画
非線引き都市計画区域
-
形状
間口 14.37m
-
道路
北側:県道 幅員9m 南側:市道 幅員4m
-
私道
-
-
その他の制限
-
物件詳細情報
-
所在階/階数
-
-
号室
-
-
販売価格
9,800,000円
-
方位
-
-
間取り
4LDK、1階店舗兼車庫 3階はフリースペース
-
専有面積
-
-
バルコニー面積
-
-
その他面積
-
-
駐車場
-
-
管理費
-
-
修繕積立金
-
-
現況
空家
-
仲介手数料
389,400円
-
利用制限
-
-
学校区
十日町小学校(982m)・十日町中学校(1,076m)
-
設備
日当り良好、スーパー近く、新築時図面あり、駐車3台以上可能、TVインターホン、システムキッチン、3口コンロ、追いだき機能付き、バス1坪以上、温水洗浄便座、トイレ2か所以上、エアコンあり、堀ごたつ、LPG、上水道、下水道、即引き渡し可能、別荘、田舎暮らし、事業向け
-
取引態様
一般
-
情報登録日
2026/04/06
-
次回更新予定日
2026/06/12
-
取引条件有効期限
2026/07/07
備考
■現況有姿での引渡しとなり売主による契約不適合責任は免責となります ■固定資産税 年22万円
■管理状態のいい住宅です
取扱い会社
ブレイン・リアルエステート合同会社
Copyright (C) 株式会社 コモンライフ・コーポレーション. All Rights Reserved.
不動産検索サイト「らくすむ」及び関連サイトに記載の不動産情報は、会員規約に則り、情報提供会社様の責任のもとに発信されております。
不動産の賃借、購入に関しては賃借者、購入者ご自身が情報を確認され、会社企業様から説明を受けられたうえで判断をお願いいたします。
不動産検索サイト「らくすむ」及び関連サイトに記載の不動産情報、写真、デザイン、コンテンツなどの無断転載・転用・複製など禁止します。