
サーパス旭町 804 詳細
804号室
お気に入り
追加済み
物件画像を詳しく見る

長岡駅から徒歩10分の立地です。
物件概要
角部屋で日当たり良好!駐車場空きあり
-
物件コード
00041-200933
-
物件名
サーパス旭町 804
-
交通
駅:上越新幹線 長岡駅から徒歩8分、バス:南町1丁目から徒歩1分
-
所在地
新潟県長岡市旭町1丁目1-11サーパス旭町804
物件へのルート表示
-
物件種別
中古マンション
-
構造
鉄筋コン
-
階建
地上10階地下1階建
-
建ぺい率/容積率
90%/399%
-
建物面積
3,551.97㎡
/1,074.47坪
-
土地面積
640.32㎡
/193.69坪
-
築年月
2006年1月(築20年)
-
入居時期
随時入居(引き渡し)可
-
用途地域
商業地域
-
地目
宅地 (現状:宅地)
-
都市計画
市街化区域
-
形状
-
-
道路
-
-
私道
-
-
その他の制限
-
物件詳細情報
-
所在階/階数
8階/10階
-
号室
804号室
-
販売価格
18,500,000円
-
方位
南
-
間取り
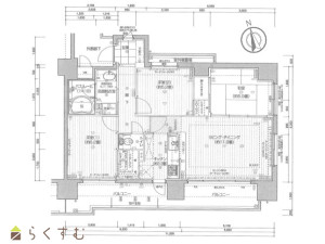
2LDK (和室:5.9畳) (洋室:6.2、5.2)、LDK11.9
-
専有面積
68.74㎡
/20.79坪
-
バルコニー面積
15.42㎡
/4.66坪
-
その他面積
-
-
駐車場
13,000円~
-
管理費
14,900円
-
修繕積立金
17,600円
-
現況
空家
-
仲介手数料
676,500円
-
CATV
770円
-
インターネット
2,835円
-
警備料
692円
-
町内費
500円
-
利用制限
ペット:相談、楽器:相談
-
学校区
阪之上小学校(756m)・南中学校(403m)
-
設備
角部屋、2階以上、日当り良好、最寄駅近く、洗濯機置き場、エレベーター、和室あり、駐車場空きあり、平面駐車場、南向き、管理人常駐(日中)、TV付きインターホン、エントランスオートロック、ガスコンロ設置済み、温水洗浄便座、シャワー付き洗面台、床暖房、都市ガス、公営水道、下水道、ウォークインクローゼット、シューズBOX、CATV、即入居可能、ペット相談、楽器相談
-
取引態様
一般
-
情報登録日
2026/01/08
-
次回更新予定日
2026/04/19
-
取引条件有効期限
2026/04/08
備考
取扱い会社
株式会社 高野不動産販売
-
TEL
0258-33-7711
-
所在地
新潟県長岡市柏町1丁目4-33
-
交通
長岡駅
-
営業時間
9:00~17:30/定休日:土曜日・日曜日・祝日・お盆・年末年始
-
免許番号
新潟県知事(1)第5568号
-
所属団体名
(公社)新潟県宅地建物取引業協会,(公社)首都圏不動産公正取引協議会,(公財)日本賃貸住宅管理協会
-
取引態様
一般
Copyright (C) 株式会社 コモンライフ・コーポレーション. All Rights Reserved.
不動産検索サイト「らくすむ」及び関連サイトに記載の不動産情報は、会員規約に則り、情報提供会社様の責任のもとに発信されております。
不動産の賃借、購入に関しては賃借者、購入者ご自身が情報を確認され、会社企業様から説明を受けられたうえで判断をお願いいたします。
不動産検索サイト「らくすむ」及び関連サイトに記載の不動産情報、写真、デザイン、コンテンツなどの無断転載・転用・複製など禁止します。