
サーパス千手弐番館201号室 詳細
201号室
お気に入り
追加済み
物件画像を詳しく見る

築20年未満の分譲マンションです!
物件概要
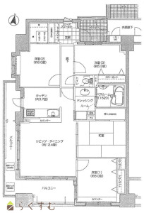
角部屋で階下に住戸が無い、4LDKです
-
物件コード
00041-200896
-
物件名
サーパス千手弐番館201号室
-
交通
駅:上越新幹線 長岡駅から徒歩14分、バス:柏町から徒歩4分
-
所在地
新潟県長岡市千手2丁目11-18
物件へのルート表示
-
物件種別
中古マンション
-
構造
鉄筋コン
-
階建
地上9階建
-
建ぺい率/容積率
90%/300%
-
建物面積
6,450.71㎡
/1,951.33坪
-
土地面積
1,791.41㎡
/541.9坪
-
築年月
2006年11月(築19年)
-
入居時期
相談
-
用途地域
近隣商業地域
-
地目
宅地 (現状:宅地)
-
都市計画
市街化区域
-
形状
-
-
道路
西側 公道 約22m、北側 公道 約15m
-
私道
-
-
その他の制限
-
物件詳細情報
-
所在階/階数
2階/9階
-
号室
201号室
-
販売価格
23,500,000円
-
方位
南西
-
間取り
4LDK (和室:6畳) (洋室:6、6、5.3)、LDK16.1
-
専有面積
88.57㎡
/26.79坪
-
バルコニー面積
16.77㎡
/5.07坪
-
その他面積
-
-
駐車場
7,000円(抽選)
-
管理費
12,700円
-
修繕積立金
19,500円
-
現況
空家
-
仲介手数料
841,500円
-
インターネット利用料
2,835円
支払必須
-
専有部分警備料
427円
支払必須(アルソック提携)
-
エスコートサービス利用料
330円
支払必須
-
利用制限
ペット:可、楽器:可
-
学校区
千手小学校(213m)・南中学校(387m)
-
設備
角部屋、2階以上、閑静な住宅街、外観タイル張り、洗濯機置き場、エレベーター、宅配BOX、集会所、LDK15帖以上、全室フローリング、平面駐車場、南向き、管理人常駐(日中)、TV付きインターホン、エントランスオートロック、セキュリティ会社あり、対面式キッチン、食器洗浄乾燥機、浄水器、3口コンロ、ガスコンロ設置済み、浴室乾燥機、浴室1坪以上、温水洗浄便座、シャワー付き洗面台、エアコン、床暖房、都市ガス、公営水道、下水道
-
取引態様
一般
-
情報登録日
2024/10/18
-
次回更新予定日
2026/01/01
-
取引条件有効期限
2025/02/08
備考
駐車場は現在平置きの区画ですが、2年ごとに抽選があります。
取扱い会社
株式会社 高野不動産販売
-
TEL
0258-33-7711
-
所在地
新潟県長岡市柏町1丁目4-33
-
交通
長岡駅
-
営業時間
9:00~17:30/定休日:土曜日・日曜日・祝日・お盆・年末年始
-
免許番号
新潟県知事(1)第5568号
-
所属団体名
(公社)新潟県宅地建物取引業協会,(公社)首都圏不動産公正取引協議会,(公財)日本賃貸住宅管理協会
-
取引態様
一般
Copyright (C) 株式会社 コモンライフ・コーポレーション. All Rights Reserved.
不動産検索サイト「らくすむ」及び関連サイトに記載の不動産情報は、会員規約に則り、情報提供会社様の責任のもとに発信されております。
不動産の賃借、購入に関しては賃借者、購入者ご自身が情報を確認され、会社企業様から説明を受けられたうえで判断をお願いいたします。
不動産検索サイト「らくすむ」及び関連サイトに記載の不動産情報、写真、デザイン、コンテンツなどの無断転載・転用・複製など禁止します。