
石動町住宅 詳細
お気に入り
追加済み
物件画像を詳しく見る

広い敷地・庭付き住宅です♪ 状態の良い住宅です。
物件概要
-
物件コード
00040-201160
-
物件名
石動町住宅
-
交通
駅:上越新幹線 長岡駅から徒歩78分、バス:日越団地から徒歩6分
-
所在地
新潟県長岡市石動町463-1
物件へのルート表示
-
物件種別
中古一戸建て
-
構造
木造
-
階建
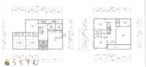
地上2階建
-
建ぺい率/容積率
70%/200%
-
建物面積
166.75㎡
/50.44坪
-
土地面積
776.08㎡
/234.76坪
-
築年月
2006年8月(築19年)
-
入居時期
測量分筆後
-
用途地域
無指定
-
地目
宅地 (現状:宅地)
-
都市計画
市街化調整区域
-
形状
間口 27.4m × 奥行 27.3m
-
道路
公道
-
私道
-
-
その他の制限
-
物件詳細情報
-
所在階/階数
-
-
号室
-
-
販売価格
21,500,000円
-
方位
東
-
間取り
6LDK (和室:7.4畳、7.4畳) (洋室:7.4、6.3、6.3、12)、LDk12
-
専有面積
-
-
バルコニー面積
-
-
その他面積
6㎡
/1.81坪
クローゼット
-
駐車場
-
-
管理費
-
-
修繕積立金
-
-
現況
居住中
-
仲介手数料
775,500円
-
利用制限
-
-
学校区
日越小学校(830m)・西中学校(1,813m)
-
設備
日当り良好、閑静な住宅街、駐車2台可能、複層ガラス、IHクッキングヒーター、追いだき機能付き、バス1坪以上、トイレ2か所以上、オール電化、上水道、下水道、全居室収納あり、シューズBOX
-
取引態様
専任
-
情報登録日
2025/10/07
-
次回更新予定日
2025/12/30
-
取引条件有効期限
2025/12/07
備考
・土地測量分筆後の引渡しとなります。
・敷地内に別棟の住宅があり、借家として契約しています。賃貸収入があります。
取扱い会社
髙頭不動産 株式会社
-
TEL
0120-1818-27
-
所在地
新潟県長岡市千歳1-3-25
-
交通
長岡駅
-
営業時間
8時30分~17時30分(大手支店は9時~18時)/定休日:本社:土日祝日(事前予約での対応可能)、支店:日曜祝日第5土曜(毎年2月下旬から3月は休みなし)
-
免許番号
新潟県知事(17)第191号
-
所属団体名
新潟県宅地建物取引協会 長岡支部
-
取引態様
専任
Copyright (C) 株式会社 コモンライフ・コーポレーション. All Rights Reserved.
不動産検索サイト「らくすむ」及び関連サイトに記載の不動産情報は、会員規約に則り、情報提供会社様の責任のもとに発信されております。
不動産の賃借、購入に関しては賃借者、購入者ご自身が情報を確認され、会社企業様から説明を受けられたうえで判断をお願いいたします。
不動産検索サイト「らくすむ」及び関連サイトに記載の不動産情報、写真、デザイン、コンテンツなどの無断転載・転用・複製など禁止します。