
長町中古住宅 詳細
お気に入り
追加済み
物件画像を詳しく見る

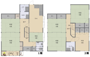
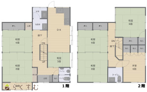
高床式住宅(天井高約1450mm)!敷地内消雪設備あり!
物件概要
-
物件コード
00040-201155
-
物件名
長町中古住宅
-
交通
駅:信越線 長岡駅から徒歩17分、バス:昭和通りから徒歩2分
-
所在地
新潟県長岡市長町2丁目2-2
物件へのルート表示
-
物件種別
中古一戸建て
-
構造
木造
-
階建
地上2階建
-
建ぺい率/容積率
80%/300%
-
建物面積
134.87㎡
/40.79坪
-
土地面積
128.49㎡
/38.86坪
-
築年月
1983年10月(築42年)
-
入居時期
随時入居(引き渡し)可
-
用途地域
近隣商業地域
-
地目
宅地 (現状:宅地)
-
都市計画
市街化区域
-
形状
-
-
道路
東側 公道 4m
-
私道
-
-
その他の制限
準防火地域
物件詳細情報
-
所在階/階数
-
-
号室
-
-
販売価格
7,800,000円
-
方位
東
-
間取り
6DK
-
専有面積
-
-
バルコニー面積
-
-
その他面積
-
-
駐車場
-
-
管理費
-
-
修繕積立金
-
-
現況
空家
-
仲介手数料
330,000円
-
利用制限
-
-
学校区
神田小学校(242m)・東中学校(836m)
-
設備
閑静な住宅街
-
取引態様
専任
-
情報登録日
2025/08/21
-
次回更新予定日
2026/01/01
-
取引条件有効期限
2025/12/31
備考
敷地の一部が道路敷きになっております
取扱い会社
髙頭不動産 株式会社
-
TEL
0120-1818-27
-
所在地
新潟県長岡市千歳1-3-25
-
交通
長岡駅
-
営業時間
8時30分~17時30分(大手支店は9時~18時)/定休日:本社:土日祝日(事前予約での対応可能)、支店:日曜祝日第5土曜(毎年2月下旬から3月は休みなし)
-
免許番号
新潟県知事(17)第191号
-
所属団体名
新潟県宅地建物取引協会 長岡支部
-
取引態様
専任
Copyright (C) 株式会社 コモンライフ・コーポレーション. All Rights Reserved.
不動産検索サイト「らくすむ」及び関連サイトに記載の不動産情報は、会員規約に則り、情報提供会社様の責任のもとに発信されております。
不動産の賃借、購入に関しては賃借者、購入者ご自身が情報を確認され、会社企業様から説明を受けられたうえで判断をお願いいたします。
不動産検索サイト「らくすむ」及び関連サイトに記載の不動産情報、写真、デザイン、コンテンツなどの無断転載・転用・複製など禁止します。