
アルファステイツ大手通 詳細
401号室
お気に入り
追加済み
物件画像を詳しく見る

長岡駅徒歩5分圏内の好立地マンション。駅から物件までアーケードがあるので、雨の日も濡れずに帰宅できます。
物件概要
南西角地・ペット可・インターネット無料
-
物件コード
00040-201151
-
物件名
アルファステイツ大手通
-
交通
駅:信越線 長岡駅から徒歩10分、バス:大手通2丁目から徒歩1分
-
所在地
新潟県長岡市大手通2丁目4番地1
物件へのルート表示
-
物件種別
中古マンション
-
構造
鉄筋コン
-
階建
地上15階建
-
建ぺい率/容積率
90%/600%
-
建物面積
4,284.29㎡
/1,295.99坪
-
土地面積
699.01㎡
/211.45坪
-
築年月
2022年9月(築3年)
-
入居時期
随時入居(引き渡し)可
-
用途地域
商業地域
-
地目
宅地 (現状:宅地)
-
都市計画
市街化区域
-
形状
-
-
道路
北側 国道 東側 市道
-
私道
-
-
その他の制限
防火地域
物件詳細情報
-
所在階/階数
4階/15階
-
号室
401号室
-
販売価格
29,800,000円
-
方位
南西
-
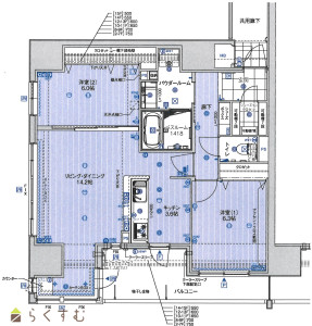
間取り
2LDK
-
専有面積
71.94㎡
/21.76坪
-
バルコニー面積
9.56㎡
/2.89坪
-
その他面積
-
-
駐車場
17,000円~
-
管理費
9,800円
-
修繕積立金
4,700円
-
現況
空家
-
仲介手数料
1,049,400円
-
災害積立金
300円
-
利用制限
ペット:可、楽器:可
-
学校区
阪之上小学校(777m)・東中学校(1,340m)
-
設備
10階建て以上、角部屋、2階以上、日当り良好、スーパー近く、洗濯機置き場、エレベーター、全室フローリング、築5年以内、駐輪場、南向き、管理人常駐(日中)、セキュリティー良し、TV付きインターホン、エントランスオートロック、システムキッチン、対面式キッチン、3口コンロ、ガスコンロ設置済み、浴室乾燥機、温水洗浄便座、シャワー付き洗面台、エアコン、都市ガス、公営水道、下水道、シューズBOX、シューズインクローゼット、即入居可能、ペット相談
-
取引態様
一般
-
情報登録日
2025/08/21
-
次回更新予定日
2025/12/31
-
取引条件有効期限
2025/11/18
備考
取扱い会社
髙頭不動産 株式会社
-
TEL
0120-1818-27
-
所在地
新潟県長岡市千歳1-3-25
-
交通
長岡駅
-
営業時間
8時30分~17時30分(大手支店は9時~18時)/定休日:本社:土日祝日(事前予約での対応可能)、支店:日曜祝日第5土曜(毎年2月下旬から3月は休みなし)
-
免許番号
新潟県知事(17)第191号
-
所属団体名
新潟県宅地建物取引協会 長岡支部
-
取引態様
一般
Copyright (C) 株式会社 コモンライフ・コーポレーション. All Rights Reserved.
不動産検索サイト「らくすむ」及び関連サイトに記載の不動産情報は、会員規約に則り、情報提供会社様の責任のもとに発信されております。
不動産の賃借、購入に関しては賃借者、購入者ご自身が情報を確認され、会社企業様から説明を受けられたうえで判断をお願いいたします。
不動産検索サイト「らくすむ」及び関連サイトに記載の不動産情報、写真、デザイン、コンテンツなどの無断転載・転用・複製など禁止します。