
柏崎畔屋 戸建て 詳細
お気に入り
追加済み
物件画像を詳しく見る

外装・内装リフォーム済み、田園風景の広がる静かな立地です。
物件概要
給湯器やガス・上下水の配管も新品交換済みです!
-
物件コード
00040-201050
-
物件名
柏崎畔屋 戸建て
-
交通
駅:越後線 西中通駅から徒歩57分、バス:畔屋から徒歩4分
-
所在地
新潟県柏崎市畔屋2230番1
物件へのルート表示
-
物件種別
中古一戸建て
-
構造
木造
-
階建
地上2階建
-
建ぺい率/容積率
70%/200%
-
建物面積
140.97㎡
/42.64坪
-
土地面積
532.17㎡
/160.98坪
-
築年月
1975年1月(築51年)
-
入居時期
随時入居(引き渡し)可
-
用途地域
無指定
-
地目
宅地 (現状:上物有り)
-
都市計画
非線引き都市計画区域
-
形状
-
-
道路
北側公道幅員5.1 m、南側公道幅員3.4m~4.2m
-
私道
-
-
その他の制限
-
物件詳細情報
-
所在階/階数
-
-
号室
-
-
販売価格
3,300,000円
-
方位
指定なし
-
間取り
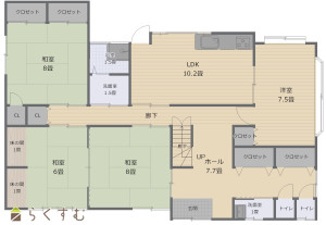
6DK、DK約10畳、・隣接地との境界の明示は行いません。・現況有形有姿での引渡しとなります。
-
専有面積
-
-
バルコニー面積
-
-
その他面積
-
-
駐車場
-
-
管理費
-
-
修繕積立金
-
-
現況
空家
-
仲介手数料
330,000円
-
利用制限
-
-
学校区
北鯖石小学校(1,362m)・東中学校(2,211m)
-
設備
日当り良好、閑静な住宅街、駐車2台可能、駐車3台以上可能、トイレ2か所以上、エアコンあり、都市ガス、上水道、下水道、内装リフォーム済み、外装リフォーム済み
-
取引態様
一般
-
情報登録日
2024/11/05
-
次回更新予定日
2026/06/12
-
取引条件有効期限
2024/01/02
備考
・隣接地との境界の明示は行いません。(公簿面積売買)
・隣接者所有の物置小屋一部が本物件内に越境しています。
・上記状況及び物件内の動産物(残置物)含めて現況有形有姿での引渡しです。
・南側公道幅員:3.4m~4.2m
取扱い会社
髙頭不動産 株式会社
-
TEL
0120-1818-27
-
所在地
新潟県長岡市千歳1-3-25
-
交通
長岡駅
-
営業時間
8時30分~17時30分(大手支店は9時~18時)/定休日:本社:土日祝日(事前予約での対応可能)、支店:日曜祝日第5土曜(毎年2月下旬から3月は休みなし)
-
免許番号
新潟県知事(17)第191号
-
所属団体名
新潟県宅地建物取引協会 長岡支部
-
取引態様
一般
Copyright (C) 株式会社 コモンライフ・コーポレーション. All Rights Reserved.
不動産検索サイト「らくすむ」及び関連サイトに記載の不動産情報は、会員規約に則り、情報提供会社様の責任のもとに発信されております。
不動産の賃借、購入に関しては賃借者、購入者ご自身が情報を確認され、会社企業様から説明を受けられたうえで判断をお願いいたします。
不動産検索サイト「らくすむ」及び関連サイトに記載の不動産情報、写真、デザイン、コンテンツなどの無断転載・転用・複製など禁止します。