
大山1丁目 中古住宅 詳細
お気に入り
追加済み
物件画像を詳しく見る

大山1丁目 ちょうどいい大きさの4LDK中古住宅です!
物件概要
大山1丁目 ちょうどいい大きさの4LDK中古住宅です!
-
物件コード
00039-200297
-
物件名
大山1丁目 中古住宅
-
交通
駅:上越新幹線 長岡駅から徒歩44分、バス:西中入口から徒歩5分
-
所在地
新潟県長岡市大山1丁目12-11
物件へのルート表示
-
物件種別
中古一戸建て
-
構造
木造
-
階建
地上2階建
-
建ぺい率/容積率
60%/200%
-
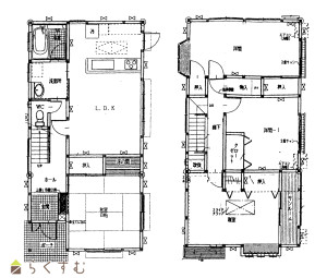
建物面積
116.28㎡
/35.17坪
-
土地面積
152.59㎡
/46.15坪
-
築年月
1994年12月(築31年)
-
入居時期
相談
-
用途地域
第1種住居地域
-
地目
宅地
-
都市計画
市街化区域
-
形状
間口 8.2m
-
道路
長岡市道 幅員8m(消雪あり)
-
私道
-
-
その他の制限
法22条区域・まちなか居住区域
物件詳細情報
-
所在階/階数
-
-
号室
-
-
販売価格
9,760,000円
-
方位
南西
-
間取り
4LDK (和室:8畳) (洋室:9、7、8.5)、LDK14
-
専有面積
-
-
バルコニー面積
-
-
その他面積
-
-
駐車場
-
-
管理費
-
-
修繕積立金
-
-
現況
-
仲介手数料
388,080円
-
利用制限
-
-
学校区
希望が丘小学校(711m)・西中学校(798m)
-
設備
日当り良好、閑静な住宅街、駐車2台可能、システムキッチン、2口コンロ、追いだき機能付き、シャワー付き洗面台、都市ガス、上水道、下水道、全居室収納あり
-
取引態様
一般
-
情報登録日
2026/04/07
-
次回更新予定日
2026/04/21
-
取引条件有効期限
2026/07/07
備考
〇現状有姿渡し 〇リフォーム相談承ります!
取扱い会社
ふどうさんの相談所 (ライフデザイン合同会社 イオン長岡店)
Copyright (C) 株式会社 コモンライフ・コーポレーション. All Rights Reserved.
不動産検索サイト「らくすむ」及び関連サイトに記載の不動産情報は、会員規約に則り、情報提供会社様の責任のもとに発信されております。
不動産の賃借、購入に関しては賃借者、購入者ご自身が情報を確認され、会社企業様から説明を受けられたうえで判断をお願いいたします。
不動産検索サイト「らくすむ」及び関連サイトに記載の不動産情報、写真、デザイン、コンテンツなどの無断転載・転用・複製など禁止します。