
栃尾 栄町2丁目 医院 詳細
お気に入り
追加済み
物件画像を詳しく見る

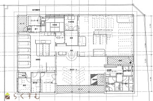
栃尾の医院建物 介護施設の利用も可
物件概要
-
賃料
22万円/月
-
管理費
10,000円/月
-
敷/礼
3ヶ月/
なし
-
間取り
-
-
広さ
314.55㎡
/95.15坪
-
階建
地上1階建
-
築年数
2002年12月(築23年)
-
種別
店舗
-
住所
新潟県長岡市栄町2丁目7-15
物件へのルート表示
-
交通
駅:信越線 見附駅から徒歩145分、バス:警察署前から徒歩4分
-
物件コード
00039-100104
-
物件名
栃尾 栄町2丁目 医院
-
交通
駅:信越線 見附駅から徒歩145分、バス:警察署前から徒歩4分
-
所在地
新潟県長岡市栄町2丁目7-15
物件へのルート表示
-
物件種別
店舗
-
総戸数
-
-
構造
鉄骨
-
階建
地上1階建
-
所在階/階数
-
-
号室
-
-
専有面積
314.55㎡
/95.15坪
-
方位
-
-
間取り
-
-
賃料
22万円/月
-
管理費
10,000円/月
-
礼金
-
-
敷金
3ヶ月
-
共益費
-
-
ほか初期費用
-
-
その他諸費用
-
-
更新料
30,000円
-
火災(家財)保険
-
-
駐車場
-
-
町内費
-
-
バイク料金
-
-
鍵交換費
-
-
清掃料
-
-
更新事務手数料
-
-
保証区分
保証会社のみ
-
保証会社
区分:加入要
保証会社名:ジェイリース
jakinai 初回保証料100%+継続保証料(毎年)10%
-
家賃保証金
230,000円
-
連帯保証人
[区分]
不要
-
-
仲介手数料
242,000円
-
手数料負担割合
貸主:-%
借主:100%
-
手数料配分割合
元付:50%
客付:50%
-
築年月
2002年12月(築23年)
-
利用制限
法人:可、学生:不可、単身者:不可、二人入居:不可、シニア(60歳以上)入居:不可、子供:不可、ペット:不可、楽器:不可、事務所利用:可、ルームシェア:不可
-
学校区
栃尾東小学校(488m)・刈谷田中学校(1,340m)
-
設備
1階、エアコン
-
入居時期
相談
-
取引態様
貸主
-
情報登録日
2026/05/14
-
次回更新予定日
2026/06/01
備考
取扱い会社
ふどうさんの相談所 (ライフデザイン合同会社 イオン長岡店)
Copyright (C) 株式会社 コモンライフ・コーポレーション. All Rights Reserved.
不動産検索サイト「らくすむ」及び関連サイトに記載の不動産情報は、会員規約に則り、情報提供会社様の責任のもとに発信されております。
不動産の賃借、購入に関しては賃借者、購入者ご自身が情報を確認され、会社企業様から説明を受けられたうえで判断をお願いいたします。
不動産検索サイト「らくすむ」及び関連サイトに記載の不動産情報、写真、デザイン、コンテンツなどの無断転載・転用・複製など禁止します。