
殿町3丁目 紫紅ビル2F 詳細
202号室
お気に入り
追加済み
物件画像を詳しく見る

殿町3丁目の飲食店舗
物件概要
-
賃料
7.5万円/月
-
管理費
5,500円/月
-
敷/礼
3ヶ月/
1ヶ月
-
間取り
-
-
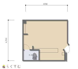
広さ
26.23㎡
/7.93坪
-
階建
地上2階地下1階建
-
築年数
1976年6月(築49年)
-
種別
店舗
-
住所
新潟県長岡市殿町3丁目3番7号
物件へのルート表示
-
交通
駅:上越新幹線 長岡駅から徒歩10分、バス:大手通2丁目から徒歩4分
-
物件コード
00039-100089
-
物件名
殿町3丁目 紫紅ビル2F
-
交通
駅:上越新幹線 長岡駅から徒歩10分、バス:大手通2丁目から徒歩4分
-
所在地
新潟県長岡市殿町3丁目3番7号
物件へのルート表示
-
物件種別
店舗
-
総戸数
-
-
構造
鉄筋コン
-
階建
地上2階地下1階建
-
所在階/階数
2階/2階
-
号室
202号室
-
専有面積
26.23㎡
/7.93坪
-
方位
-
-
間取り
-
-
賃料
7.5万円/月
-
管理費
5,500円/月
-
礼金
1ヶ月
-
敷金
3ヶ月
-
共益費
1,100円
看板電気代
-
ほか初期費用
-
-
その他諸費用
-
-
更新料
-
-
火災(家財)保険
別途 要加入
-
駐車場
-
-
町内費
-
-
バイク料金
-
-
鍵交換費
-
-
清掃料
-
-
更新事務手数料
-
-
保証区分
保証会社のみ
-
保証会社
区分:加入要
保証会社名:ジェイリース
J-akinai
-
家賃保証金
80,000円
初回保証料 1ヶ月 継続保証料(毎年)10%
-
連帯保証人
[区分]
不要
-
-
仲介手数料
82,500円
-
手数料負担割合
貸主:-%
借主:100%
-
手数料配分割合
元付:50%
客付:50%
-
築年月
1976年6月(築49年)
-
利用制限
学生:不可、単身者:不可、二人入居:不可、シニア(60歳以上)入居:不可、子供:不可、ペット:不可、楽器:不可、事務所利用:可、ルームシェア:不可
-
学校区
阪之上小学校(869m)・東中学校(1,439m)
-
設備
2階以上、給湯
-
入居時期
相談
-
取引態様
仲介
-
情報登録日
2025/10/25
-
次回更新予定日
2025/12/31
備考
*空調設備は冷房のみです。
*店舗内部は一部工事未了ですので、補修工事が必須となります。
取扱い会社
ふどうさんの相談所 (ライフデザイン合同会社 イオン長岡店)
Copyright (C) 株式会社 コモンライフ・コーポレーション. All Rights Reserved.
不動産検索サイト「らくすむ」及び関連サイトに記載の不動産情報は、会員規約に則り、情報提供会社様の責任のもとに発信されております。
不動産の賃借、購入に関しては賃借者、購入者ご自身が情報を確認され、会社企業様から説明を受けられたうえで判断をお願いいたします。
不動産検索サイト「らくすむ」及び関連サイトに記載の不動産情報、写真、デザイン、コンテンツなどの無断転載・転用・複製など禁止します。