
茨目180-108 詳細
お気に入り
追加済み
物件画像を詳しく見る

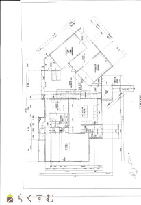
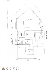
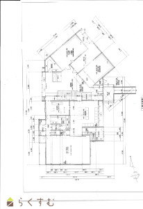
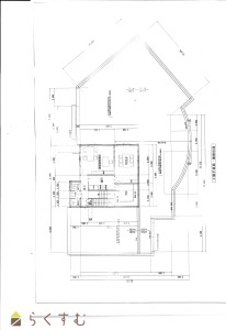
旧内科医院です。
物件概要
-
物件コード
00031-200169
-
物件名
茨目180-108
-
交通
駅:信越線 茨目駅から徒歩7分、バス:柏崎インター口から徒歩2分
-
所在地
新潟県柏崎市茨目2丁目956-1
物件へのルート表示
-
物件種別
投資物件・その他
-
物件区分
その他
-
構造
木造
-
階建
-
-
建ぺい率/容積率
70%/200%
-
建物面積
359.57㎡
/108.76坪
-
土地面積
597.38㎡
/180.7坪
-
築年月
2005年11月(築20年)
-
入居時期
相談
-
用途地域
用途の指定のない地域
-
地目
宅地
-
都市計画
非線引き都市計画区域
-
形状
間口 32.53m
-
道路
公道
-
私道
-
-
その他の制限
-
物件詳細情報
-
所在階/階数
-
-
号室
-
-
販売価格
23,500,000円
-
表面利回り
(満室想定時)
-
-
満室想定年収
-
(想定月収:
-
)
-
現行利回り
-
-
現行年間年収
-
-
住戸数
-
-
方位
-
-
間取り
-
-
専有面積
-
-
バルコニー面積
-
-
その他面積
-
-
駐車場
8台
-
管理費
-
-
修繕積立金
-
-
現況
空家
-
仲介手数料
841,500円
-
利用制限
-
-
学校区
田尻小学校(1,944m)・東中学校(1,845m)
-
設備
南側道路面す、駐車場(近隣含む)、公営水道、下水道、事業向け
-
取引態様
一般
-
情報登録日
2025/11/11
-
次回更新予定日
2026/04/21
-
取引条件有効期限
2026/03/31
備考
キュービクル設備は撤去してあります。エアコンは使用できません。
取扱い会社
株式会社 ウェルネスホーム
Copyright (C) 株式会社 コモンライフ・コーポレーション. All Rights Reserved.
不動産検索サイト「らくすむ」及び関連サイトに記載の不動産情報は、会員規約に則り、情報提供会社様の責任のもとに発信されております。
不動産の賃借、購入に関しては賃借者、購入者ご自身が情報を確認され、会社企業様から説明を受けられたうえで判断をお願いいたします。
不動産検索サイト「らくすむ」及び関連サイトに記載の不動産情報、写真、デザイン、コンテンツなどの無断転載・転用・複製など禁止します。