
寺泊上田町 中古住宅 詳細
お気に入り
追加済み
物件画像を詳しく見る

寺泊中心部高台の閑静な住宅街 海まで徒歩約5分 5SDK 土地建物総額150万円
物件概要
-
物件コード
00024-200453
-
物件名
寺泊上田町 中古住宅
-
交通
駅:越後線 寺泊駅から徒歩65分、バス:上田町から徒歩3分
-
所在地
新潟県長岡市寺泊上田町8204
物件へのルート表示
-
物件種別
中古一戸建て
-
構造
木造
-
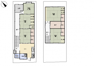
階建
地上2階建
-
建ぺい率/容積率
-
-
建物面積
109.58㎡
/33.14坪
-
土地面積
89.25㎡
/26.99坪
-
築年月
1960年8月(築65年)
-
入居時期
随時入居(引き渡し)可
-
用途地域
無指定
-
地目
宅地
-
都市計画
都市計画区域外
-
形状
-
-
道路
市道2.7m
-
私道
-
-
その他の制限
-
物件詳細情報
-
所在階/階数
-
-
号室
-
-
販売価格
1,500,000円
-
方位
指定なし
-
間取り
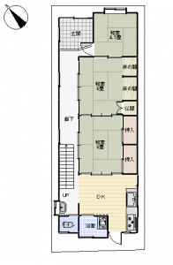
5DK (和室:4.5畳、6畳、6畳、8畳、8畳)、DK6S3、駐車場なし、車の乗入れはできません。
-
専有面積
-
-
バルコニー面積
-
-
その他面積
-
-
駐車場
-
-
管理費
-
-
修繕積立金
-
-
現況
空家
-
仲介手数料
330,000円
-
利用制限
-
-
学校区
寺泊小学校(236m)・寺泊中学校(2,246m)
-
設備
日当り良好、閑静な住宅街、即引き渡し可能
-
取引態様
専任
-
情報登録日
2026/04/16
-
次回更新予定日
2026/05/31
-
取引条件有効期限
2030/09/30
備考
下水公共桝有り、未接続。接続時受益者負担金15万円賦課。 土砂災害警戒区域等の指定あり。 物件前への車の進入は不可。 内見をご希望の方は事前にお電話かメールでお申し出ください。
取扱い会社
株式会社 エヌ・アール・ケー総合企画
Copyright (C) 株式会社 コモンライフ・コーポレーション. All Rights Reserved.
不動産検索サイト「らくすむ」及び関連サイトに記載の不動産情報は、会員規約に則り、情報提供会社様の責任のもとに発信されております。
不動産の賃借、購入に関しては賃借者、購入者ご自身が情報を確認され、会社企業様から説明を受けられたうえで判断をお願いいたします。
不動産検索サイト「らくすむ」及び関連サイトに記載の不動産情報、写真、デザイン、コンテンツなどの無断転載・転用・複製など禁止します。