
ライオンズマンション長岡 詳細
1103号室
お気に入り
追加済み
物件画像を詳しく見る

長岡駅まで徒歩約11分・コンビニまで徒歩約5分
物件概要
-
物件コード
00014-200355
-
物件名
ライオンズマンション長岡
-
交通
駅:上越新幹線 長岡駅から徒歩11分、バス:南町1丁目から徒歩3分
-
所在地
新潟県長岡市南町1丁目1998-26
物件へのルート表示
-
物件種別
中古マンション
-
構造
鉄骨鉄筋コン
-
階建
地上14階建
-
建ぺい率/容積率
60%/200%
-
建物面積
-
-
土地面積
1,586.14㎡
/479.8坪
-
築年月
1991年7月(築34年)
-
入居時期
相談
-
用途地域
準住居地域
-
地目
宅地 (現状:宅地)
-
都市計画
市街化区域
-
形状
-
-
道路
公道
-
私道
-
-
その他の制限
-
物件詳細情報
-
所在階/階数
11階/14階
-
号室
1103号室
-
販売価格
11,800,000円
-
方位
-
-
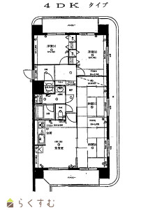
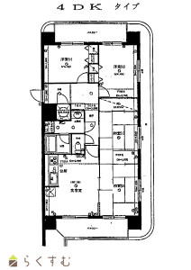
間取り
4DK (和室:6畳、6畳) (洋室:5、6)、DK8
-
専有面積
71.03㎡
/21.48坪
-
バルコニー面積
-
-
その他面積
-
-
駐車場
-
-
管理費
-
-
修繕積立金
-
-
現況
賃貸中
-
仲介手数料
455,400円
-
利用制限
ペット:不可
-
学校区
千手小学校(665m)・南中学校(311m)
-
設備
10階建て以上、2階以上、最寄駅近く、エレベーター、和室あり、バイク置き場、駐輪場、管理人常駐(日中)
-
取引態様
一般
-
情報登録日
2024/02/06
-
次回更新予定日
2026/04/18
-
取引条件有効期限
2024/01/31
備考
取扱い会社
株式会社 金井不動産
-
TEL
0120-35-3901
-
所在地
新潟県長岡市要町3-1-26
-
交通
長岡駅大手口①バス乗場より乗車~溝橋下車徒歩約4分
-
営業時間
9:30~18:00/定休日:日曜・祝祭日
-
免許番号
新潟県知事(16)第495号
-
所属団体名
新潟県宅地建物取引業協会 長岡支部
-
取引態様
一般
Copyright (C) 株式会社 コモンライフ・コーポレーション. All Rights Reserved.
不動産検索サイト「らくすむ」及び関連サイトに記載の不動産情報は、会員規約に則り、情報提供会社様の責任のもとに発信されております。
不動産の賃借、購入に関しては賃借者、購入者ご自身が情報を確認され、会社企業様から説明を受けられたうえで判断をお願いいたします。
不動産検索サイト「らくすむ」及び関連サイトに記載の不動産情報、写真、デザイン、コンテンツなどの無断転載・転用・複製など禁止します。