
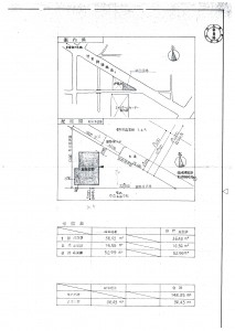
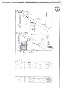
宮内町 売店舗 土地40坪 建物15坪 詳細
お気に入り
追加済み
物件画像を詳しく見る
物件概要
-
物件コード
00014-200164
-
物件名
宮内町 売店舗 土地40坪 建物15坪
-
交通
バス:東宮内から徒歩1分
-
所在地
新潟県長岡市宮内町3404-2 他1筆
物件へのルート表示
-
物件種別
投資物件・その他
-
物件区分
その他
-
構造
木造
-
階建
地上2階建
-
建ぺい率/容積率
80%/200%
-
建物面積
52.88㎡
/15.99坪
-
土地面積
133.94㎡
/40.51坪
-
築年月
1980年10月(築45年)
-
入居時期
相談
-
用途地域
近隣商業地域
-
地目
田 (現状:建物有)
-
都市計画
市街化区域
-
形状
-
-
道路
北側市道幅員20m・南側市道幅員3.8m
-
私道
-
-
その他の制限
準防火地域
物件詳細情報
-
所在階/階数
-
-
号室
-
-
販売価格
9,800,000円
-
表面利回り
(満室想定時)
-
-
満室想定年収
-
(想定月収:
-
)
-
現行利回り
-
-
現行年間年収
-
-
住戸数
-
-
方位
-
-
間取り
-
-
専有面積
-
-
バルコニー面積
-
-
その他面積
-
-
駐車場
付無料
-
管理費
-
-
修繕積立金
-
-
現況
空家
-
仲介手数料
389,400円
-
利用制限
-
-
学校区
宮内小学校(647m)・宮内中学校(785m)
-
設備
角地、駐車場(近隣含む)、事業向け
-
取引態様
一般
-
情報登録日
2023/06/17
-
次回更新予定日
2026/04/18
-
取引条件有効期限
2023/09/30
備考
フェニックス大橋に至る幹線道路沿い
取扱い会社
株式会社 金井不動産
-
TEL
0120-35-3901
-
所在地
新潟県長岡市要町3-1-26
-
交通
長岡駅大手口①バス乗場より乗車~溝橋下車徒歩約4分
-
営業時間
9:30~18:00/定休日:日曜・祝祭日
-
免許番号
新潟県知事(16)第495号
-
所属団体名
新潟県宅地建物取引業協会 長岡支部
-
取引態様
一般
Copyright (C) 株式会社 コモンライフ・コーポレーション. All Rights Reserved.
不動産検索サイト「らくすむ」及び関連サイトに記載の不動産情報は、会員規約に則り、情報提供会社様の責任のもとに発信されております。
不動産の賃借、購入に関しては賃借者、購入者ご自身が情報を確認され、会社企業様から説明を受けられたうえで判断をお願いいたします。
不動産検索サイト「らくすむ」及び関連サイトに記載の不動産情報、写真、デザイン、コンテンツなどの無断転載・転用・複製など禁止します。