
【新築】丘陵公園モデルハウス 詳細
お気に入り
追加済み
物件画像を詳しく見る

2台分のインナーガレージと2つの坪庭のある邸宅です。 広いバルコニーは贅沢なひとときを過ごせる特別な空間です。
物件概要
-
物件コード
00008-200265
-
物件名
【新築】丘陵公園モデルハウス
-
交通
駅:信越線 来迎寺駅から徒歩100分、バス:陽光台3丁目から徒歩7分
-
所在地
新潟県長岡市陽光台4丁目1379番地164
物件へのルート表示
-
物件種別
新築一戸建て
-
構造
木造
-
階建
地上2階建
-
建ぺい率/容積率
60%/200%
-
建物面積
107.64㎡
/32.56坪
-
土地面積
205.22㎡
/62.07坪
-
築年月
2024年12月(築1年)
-
入居時期
随時入居(引き渡し)可
-
用途地域
第1種中高層住居専用地域
-
地目
宅地 (現状:宅地)
-
都市計画
市街化区域
-
形状
間口 14.64m × 奥行 14.01m
-
道路
東側 長岡市道 幅員約8m(消雪道路)
-
私道
-
-
その他の制限
陽光台地区地区計画、第二種高度地区、建築基準法第22条指定区域
物件詳細情報
-
所在階/階数
-
-
号室
-
-
販売価格
45,000,000円
-
方位
-
-
間取り
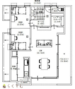
2LDK (洋室:6、9)、LDK20、洋室(9帖)を間仕切り壁で3LDKに変更可能です(工事費は買主様負担)
-
専有面積
-
-
バルコニー面積
-
-
その他面積
19.05㎡
/5.76坪
バルコニー
-
駐車場
-
-
管理費
-
-
修繕積立金
-
-
現況
空家
-
仲介手数料
1,433,850円
-
利用制限
-
-
学校区
青葉台小学校(1,350m)・青葉台中学校(1,941m)
-
設備
高台に立地、整形地、前面道路6m以上、日当り良好、閑静な住宅街、耐震構造、建物確認・完了検査済証あり、LDK15畳以上、全室フローリング、駐車場3台以上、庭あり、TVインターホン、複層ガラス、システムキッチン、IHクッキングヒーター、食器洗浄乾燥機、3口コンロ、追いだき機能付き、浴室暖房乾燥機、バス1坪以上、温水洗浄便座、シャワー付き洗面台、エアコン、24時間換気システム、省エネ給湯、都市ガス、上水道、下水道、電気、ウォークインクローゼット、シューズBOX、LAN端子、照明器具付き、即引き渡し可能
-
取引態様
一般
-
情報登録日
2025/10/27
-
次回更新予定日
2026/01/01
-
取引条件有効期限
2025/10/31
備考
設置されている家具家電はご希望があればお譲り致します。
建物未登記のため登記が必要です。(買主様負担)
KEEP:S様施工(株式会社KENYOU様)
消雪組合費・町内会費が別途必要です。
取扱い会社
株式会社 島岡不動産企画
Copyright (C) 株式会社 コモンライフ・コーポレーション. All Rights Reserved.
不動産検索サイト「らくすむ」及び関連サイトに記載の不動産情報は、会員規約に則り、情報提供会社様の責任のもとに発信されております。
不動産の賃借、購入に関しては賃借者、購入者ご自身が情報を確認され、会社企業様から説明を受けられたうえで判断をお願いいたします。
不動産検索サイト「らくすむ」及び関連サイトに記載の不動産情報、写真、デザイン、コンテンツなどの無断転載・転用・複製など禁止します。