※画像はイメージとなり実物と異なる場合があります。
前面道路は消雪パイプがありますので、冬も安心です。
物件画像を詳しく見る

分譲地内◆コンビニ・スーパー・小中学校・病院等も徒歩圏内に充実♪◆シューズクローク
物件概要
<令和8年7月完成予定>◆静かな分譲地内の建売住宅です ◆コンビニ、スーパー、小中学校、病院等も徒歩圏内に充実♪ ◆前面道路は消雪パイプがありますので、冬も安心です◆靴の収納に加え、コート掛けも備えた使い勝手の良いシューズクローク◆寝室空間をすっきり保てる、ゆとりあるウォークインクローゼット◆宅配BOXの設置にも便利な屋根付き玄関ポーチ
-
物件コード
00007-200773
-
物件名
三条市新光町 建売住宅 2号棟
-
交通
駅:弥彦線 北三条駅から徒歩21分、バス:三条警察署から徒歩5分
-
所在地
新潟県三条市新光町2340番17
物件へのルート表示
-
物件種別
新築一戸建て
-
構造
木造
-
階建
地上2階建
-
建ぺい率/容積率
60%/200%
-
建物面積
90.6㎡
/27.4坪
-
土地面積
165.39㎡
/50.03坪
-
築年月
2026年7月完成予定
-
入居時期
相談
-
用途地域
第1種住居地域
-
地目
宅地
-
都市計画
非線引き都市計画区域
-
形状
-
-
道路
西側:市道 5.0m
-
私道
-
-
その他の制限
-
物件詳細情報
-
所在階/階数
-
-
号室
-
-
販売価格
26,800,000円
-
方位
西
-
間取り
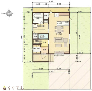
3LDK (洋室:7.6、6、6)、LDK15.6、建築確認番号:NK第25長00907号
-
専有面積
-
-
バルコニー面積
-
-
その他面積
-
-
駐車場
-
-
管理費
-
-
修繕積立金
-
-
現況
指定なし
-
仲介手数料
なし
-
利用制限
-
-
学校区
一ノ木戸小学校(276m)・第二中学校(276m)
-
設備
整形地、日当り良好、閑静な住宅街、スーパー近く、BELS/省エネ基準適合認定建物、フラット35S適合、LDK15畳以上、全室フローリング、駐車場2台以上、南向き、庭あり、TVインターホン、複層ガラス、ディンプルキー、システムキッチン、IHクッキングヒーター、3口コンロ、追いだき機能付き、バス1坪以上、温水洗浄便座、シャワー付き洗面台、エアコン、24時間換気システム、省エネ給湯、高気密高断熱住宅、都市ガス、上水道、浄化槽、電気、ウォークインクローゼット、全居室収納あり、床下収納、シューズインクローゼット、照明器具付き
-
取引態様
売主
-
情報登録日
2026/04/04
-
次回更新予定日
2026/05/14
-
取引条件有効期限
2026/06/01
備考
・22条指定区域
※物件掲載内容と現況に相違がある場合は現況を優先と致します。
詳細はお気軽にお問い合わせください。
担当:竹之内
携帯:090-7815-6720
取扱い会社
有限会社 一代工務店