※画像はイメージとなり実物と異なる場合があります。
物件画像を詳しく見る

コンビニ・スーパーが徒歩圏内◆時短が叶う家事動線◆1坪分の物干しスペース♪
物件概要
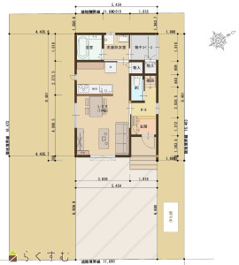
<令和8年4月完成予定>◆セブンイレブンやリオンドールが徒歩圏内でお買い物に便利♪ ◆上林小学校・第三中学校エリアです。 ◆家族団欒を眺めながら料理ができる、開放感のある対面キッチンを採用。 ◆水回りをまとめることで、家事動線を短くし家事の負担を軽減。 ◆1坪分の物干しスペースを確保。天候も気にせずに洗濯ができます。 ◆主寝室にはウォークインクロークを設けました。
-
物件コード
00007-200762
-
物件名
三条市石上2丁目 建売住宅
-
交通
駅:弥彦線 北三条駅から徒歩21分、バス:石上二丁目から徒歩3分
-
所在地
新潟県三条市石上2丁目327番2
物件へのルート表示
-
物件種別
新築一戸建て
-
構造
木造
-
階建
地上2階建
-
建ぺい率/容積率
60%/200%
-
建物面積
86.75㎡
/26.24坪
-
土地面積
192.49㎡
/58.22坪
-
築年月
2026年4月完成予定
-
入居時期
相談
-
用途地域
第1種住居地域
-
地目
宅地
-
都市計画
非線引き都市計画区域
-
形状
-
-
道路
南東側:市道 4.6m
-
私道
-
-
その他の制限
-
物件詳細情報
-
所在階/階数
-
-
号室
-
-
販売価格
23,800,000円
-
方位
南東
-
間取り
3LDK (洋室:8、6、6)、LDK14、建築確認番号:NK第25長00405号
-
専有面積
-
-
バルコニー面積
-
-
その他面積
-
-
駐車場
-
-
管理費
-
-
修繕積立金
-
-
現況
指定なし
-
仲介手数料
なし
-
利用制限
-
-
学校区
上林小学校(883m)・第三中学校(779m)
-
設備
日当り良好、BELS/省エネ基準適合認定建物、全室フローリング、駐車場2台以上、庭あり、TVインターホン、複層ガラス、ディンプルキー、システムキッチン、IHクッキングヒーター、3口コンロ、追いだき機能付き、バス1坪以上、温水洗浄便座、シャワー付き洗面台、エアコン、24時間換気システム、省エネ給湯、高気密高断熱住宅、都市ガス、上水道、浄化槽、電気、ウォークインクローゼット、全居室収納あり、床下収納、シューズBOX、照明器具付き
-
取引態様
売主
-
情報登録日
2026/03/08
-
次回更新予定日
2026/03/25
-
取引条件有効期限
2026/05/01
備考
・22条指定区域
※物件掲載内容と現況に相違がある場合は現況を優先と致します。
詳細はお気軽にお問い合わせください。
担当:小林
携帯:090-1438-1795
取扱い会社
有限会社 一代工務店