※画像はイメージとなり実物と異なる場合があります。
前面道路は消雪パイプが設置されていて冬も安心です。
物件画像を詳しく見る

スーパーやコンビニが徒歩圏内◆2SLDK◆3台並列駐車可◆乾太くん設置◆前面道路に消パイあり♪
物件概要
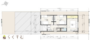
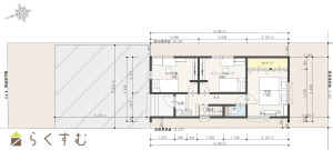
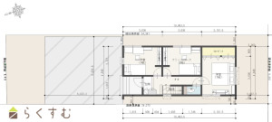
<令和8年5月完成予定>●スーパーやコンビニが徒歩圏内でお買い物に便利な立地です♪ ●中島小学校、東中学校区の新築2SLDK♪ ●広々とした駐車スペースは3台並列駐車できます。 ●前面道路には消雪パイプも完備で冬も安心! ●2階LDKは日当たり良好♪開放感のある空間に ●ガス衣類乾燥機「乾太くん」を設置!冬場や花粉の季節の洗濯ストレスを軽減します。
-
物件コード
00007-200754
-
物件名
長岡市中島1丁目 建売住宅
-
交通
駅:信越線 長岡駅から徒歩24分、バス:日赤3丁目から徒歩3分
-
所在地
新潟県長岡市中島1丁目291番20
物件へのルート表示
-
物件種別
新築一戸建て
-
構造
木造
-
階建
地上2階建
-
建ぺい率/容積率
70%/200%
-
建物面積
91.71㎡
/27.74坪
-
土地面積
154.64㎡
/46.77坪
-
築年月
2026年5月完成予定
-
入居時期
相談
-
用途地域
第1種住居地域
-
地目
宅地
-
都市計画
市街化区域
-
形状
-
-
道路
南側:位置指定道路 5.5m、西側:位置指定道路 4.5m
-
私道
-
-
その他の制限
-
物件詳細情報
-
所在階/階数
-
-
号室
-
-
販売価格
27,800,000円
-
方位
北
-
間取り
2LDK (洋室:7、6)、LDK18.8、建築確認番号:NK第25長00511号、フリースペース6帖あり、2SLDK
-
専有面積
-
-
バルコニー面積
-
-
その他面積
-
-
駐車場
-
-
管理費
-
-
修繕積立金
-
-
現況
指定なし
-
仲介手数料
なし
-
利用制限
-
-
学校区
中島小学校(413m)・東中学校(1,030m)
-
設備
角地、整形地、日当り良好、閑静な住宅街、スーパー近く、BELS/省エネ基準適合認定建物、LDK15畳以上、全室フローリング、駐車場2台以上、駐車場3台以上、南向き、庭あり、TVインターホン、複層ガラス、ディンプルキー、システムキッチン、IHクッキングヒーター、3口コンロ、追いだき機能付き、バス1坪以上、温水洗浄便座、シャワー付き洗面台、エアコン、24時間換気システム、省エネ給湯、高気密高断熱住宅、都市ガス、上水道、下水道、電気、全居室収納あり、床下収納、シューズBOX、照明器具付き
-
取引態様
売主
-
情報登録日
2026/04/05
-
次回更新予定日
2026/05/14
-
取引条件有効期限
2026/06/01
備考
・第三種高度地区
・22条指定区域
※物件掲載内容と現況に相違がある場合は現況を優先と致します。
詳細はお気軽にお問い合わせください。
担当:沼田
携帯:070-8449-3715
取扱い会社
有限会社 一代工務店