※画像はイメージとなり実物と異なる場合があります。
物件画像を詳しく見る

オール電化!自然落雪屋根♪商業施設徒歩圏内◆2階LDK◆家事ラク動線◆角地
物件概要
<令和8年3月完成予定>◆オール電化・角地の3LDK住宅! ◆自然落雪屋根で、冬も安心です♪ ◆スーパー・コンビニ・ドラッグストアが徒歩圏内♪毎日のお買物に便利です。 ◆周りからの視線が気にならない2階リビングは、居心地が良く、家族団らんにも最適です。 ◆サンルームに洗濯機置き場を配置し、洗う・干すが一ヶ所で完結。家事の時短を叶える間取り♪ ◆生活感を隠してすっきり。整った暮らしを叶える3帖のファミリークロークを設置しました。
-
物件コード
00007-200753
-
物件名
十日町市西本町2丁目 建売住宅 2号棟
-
交通
駅:飯山線 十日町駅から徒歩19分、バス:十日町車庫前から徒歩7分
-
所在地
新潟県十日町市西本町2丁目9番24
物件へのルート表示
-
物件種別
新築一戸建て
-
構造
木造
-
階建
地上2階建
-
建ぺい率/容積率
70%/150%
-
建物面積
94.6㎡
/28.61坪
-
土地面積
183㎡
/55.35坪
-
築年月
2026年3月完成予定
-
入居時期
相談
-
用途地域
第1種中高層住居専用地域
-
地目
田
-
都市計画
非線引き都市計画区域
-
形状
-
-
道路
北東側:市道 8.0m、北西側:市道 8.0m
-
私道
-
-
その他の制限
-
物件詳細情報
-
所在階/階数
-
-
号室
-
-
販売価格
27,800,000円
-
方位
北西
-
間取り
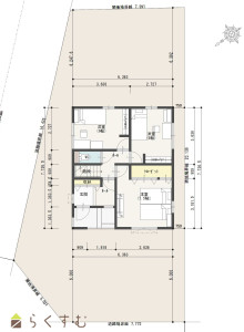
3LDK (洋室:7.5、6、6)、LDK16.1、建築確認番号:NK第25長00383号、サンルームあり
-
専有面積
-
-
バルコニー面積
-
-
その他面積
-
-
駐車場
-
-
管理費
-
-
修繕積立金
-
-
現況
指定なし
-
仲介手数料
なし
-
利用制限
-
-
学校区
西小学校(377m)・南中学校(2,039m)
-
設備
前面道路6m以上、日当り良好、閑静な住宅街、スーパー近く、BELS/省エネ基準適合認定建物、フラット35S適合、LDK15畳以上、全室フローリング、駐車場2台以上、TVインターホン、複層ガラス、ディンプルキー、システムキッチン、IHクッキングヒーター、浄水器、3口コンロ、追いだき機能付き、バス1坪以上、温水洗浄便座、シャワー付き洗面台、エアコン、24時間換気システム、オール電化、省エネ給湯、高気密高断熱住宅、上水道、下水道、電気、ウォークインクローゼット、全居室収納あり、床下収納、シューズBOX、照明器具付き
-
取引態様
売主
-
情報登録日
2026/03/08
-
次回更新予定日
2026/03/25
-
取引条件有効期限
2026/05/01
備考
・22条指定区域
※物件掲載内容と現況に相違がある場合は現況を優先と致します。
詳細はお気軽にお問い合わせください。
担当:高橋
携帯:080-1223-9349
取扱い会社
有限会社 一代工務店