物件画像を詳しく見る

55坪の敷地で駐車スペース3台可能。余裕のある敷地です。小学校・中学校・ウオロクなど近く、七日町のアクロスプラザも近いとても便利な立地です。 希望が丘小学校区・西中学校区エリアです。
物件概要
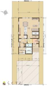
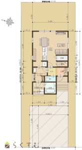
「子育てグリーン住宅支援事業」対象物件。前面道路は市道8mと広く、消雪パイプが設置されています。 キッチンからリビングが見渡せる間取り。LDKは16帖となっています。玄関に入ってすぐにウォークインクローゼットを設けました。帰宅したらすぐ部屋着に着替え、そのまま家事に取り掛かれる便利な動線です。脱衣室、洗濯機も隣ですので、取り出しやすく、乾かしたらすぐ仕舞えます。 2階寝室にもウオークインクローゼットがついています。
-
物件コード
00007-200703
-
物件名
長岡市大山3丁目 建売住宅 2号棟
-
交通
駅:信越線 宮内駅から徒歩54分、バス:大山2丁目から徒歩3分
-
所在地
新潟県長岡市大山3丁目5-22
物件へのルート表示
-
物件種別
新築一戸建て
-
構造
木造
-
階建
地上2階建
-
建ぺい率/容積率
50%/80%
-
建物面積
89.23㎡
/26.99坪
-
土地面積
183.37㎡
/55.46坪
-
築年月
2025年7月(築5ヶ月)
-
入居時期
相談
-
用途地域
第1種低層住居専用地域
-
地目
宅地
-
都市計画
市街化区域
-
形状
-
-
道路
西側:市道8.0m
-
私道
-
-
その他の制限
-
物件詳細情報
-
所在階/階数
-
-
号室
-
-
販売価格
27,800,000円
-
方位
西
-
間取り
3LDK (洋室:7、6、6)、LDK16
-
専有面積
-
-
バルコニー面積
-
-
その他面積
-
-
駐車場
-
-
管理費
-
-
修繕積立金
-
-
現況
指定なし
-
仲介手数料
なし
-
利用制限
-
-
学校区
希望が丘小学校(435m)・西中学校(300m)
-
設備
整形地、前面道路6m以上、日当り良好、スーパー近く、BELS/省エネ基準適合認定建物、フラット35S適合、LDK15畳以上、全室フローリング、駐車場2台以上、駐車場3台以上、南向き、庭あり、TVインターホン、複層ガラス、ディンプルキー、システムキッチン、IHクッキングヒーター、3口コンロ、追いだき機能付き、バス1坪以上、温水洗浄便座、シャワー付き洗面台、エアコン、24時間換気システム、省エネ給湯、高気密高断熱住宅、都市ガス、上水道、下水道、電気、ウォークインクローゼット、全居室収納あり、床下収納、シューズBOX、照明器具付き、即引き渡し可能、バリアフリー
-
取引態様
売主
-
情報登録日
2025/12/06
-
次回更新予定日
2025/12/22
-
取引条件有効期限
2026/02/01
備考
※物件掲載内容と現況に相違がある場合は現況を優先と致します。
詳細はお気軽にお問い合わせください。
担当:藤崎
携帯:090-2763-5443
取扱い会社
有限会社 一代工務店