前面道路は幅6mでゆとりがあり、消雪パイプ付きなので冬も安心
物件画像を詳しく見る

【11/29価格改定】2560万円⇒2480万円◆川崎東小学校・東北中学校エリアの建売住宅。 原信・コメリ様の他、飲食店など至近♪ 川崎ICにも近く、アクセス性良好!
物件概要
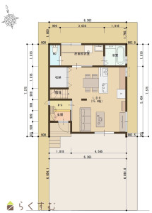
15.4帖のLDKは室内を見渡しやすい配置となっています。 室内に物干しスペースが確保されています。 2階にもトイレが設置されています。 2階寝室には3帖のウォークインクローゼットが設置されています。
-
物件コード
00007-200680
-
物件名
長岡市豊2丁目 建売住宅 1号棟
-
交通
駅:信越線 北長岡駅から徒歩21分、バス:豊町から徒歩3分
-
所在地
新潟県長岡市豊2丁目1940番11
物件へのルート表示
-
物件種別
新築一戸建て
-
構造
木造
-
階建
地上2階建
-
建ぺい率/容積率
60%/200%
-
建物面積
90.88㎡
/27.49坪
-
土地面積
125.99㎡
/38.11坪
-
築年月
2025年5月(築10ヶ月)
-
入居時期
随時入居(引き渡し)可
-
用途地域
第1種中高層住居専用地域
-
地目
宅地
-
都市計画
市街化区域
-
形状
-
-
道路
南側:市道6.0m
-
私道
-
-
その他の制限
-
物件詳細情報
-
所在階/階数
-
-
号室
-
-
販売価格
24,800,000円
-
方位
南
-
間取り
3LDK (洋室:8、6、6)、LDK15.4
-
専有面積
-
-
バルコニー面積
-
-
その他面積
-
-
駐車場
-
-
管理費
-
-
修繕積立金
-
-
現況
指定なし
-
仲介手数料
なし
-
利用制限
-
-
学校区
川崎東小学校(464m)・東北中学校(550m)
-
設備
整形地、前面道路6m以上、日当り良好、スーパー近く、BELS/省エネ基準適合認定建物、フラット35S適合、LDK15畳以上、全室フローリング、駐車場2台以上、南向き、TVインターホン、複層ガラス、ディンプルキー、システムキッチン、IHクッキングヒーター、3口コンロ、追いだき機能付き、バス1坪以上、温水洗浄便座、シャワー付き洗面台、エアコン、24時間換気システム、省エネ給湯、高気密高断熱住宅、都市ガス、上水道、下水道、電気、ウォークインクローゼット、全居室収納あり、床下収納、シューズBOX、照明器具付き、即引き渡し可能、バリアフリー
-
取引態様
売主
-
情報登録日
2026/03/08
-
次回更新予定日
2026/03/25
-
取引条件有効期限
2026/05/01
備考
【R7年11月29日価格改定しました】2560万円⇒2480万円
※旧価格公開日 R6年8月16日
新価格公開日 R7年11月29日
※物件掲載内容と現況に相違がある場合は現況を優先と致します。
詳細はお気軽にお問い合わせください。
担当:藤崎
携帯:090-2763-5443
取扱い会社
有限会社 一代工務店