
北欧ビル事務所2階 詳細
お気に入り
追加済み
物件画像を詳しく見る

事務所仕様、長岡駅より徒歩圏内
物件概要
-
物件コード
00005-100152
-
物件名
北欧ビル事務所2階
-
交通
駅:上越新幹線 長岡から徒歩10分
-
所在地
新潟県長岡市南町2丁目5-15北欧ビル 事務所
物件へのルート表示
-
物件種別
事務所
-
総戸数
-
-
構造
鉄骨鉄筋コン
-
階建
地上2階建
-
所在階/階数
2階/2階
-
号室
-
-
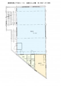
専有面積
92.29㎡
/27.91坪
-
方位
-
-
間取り
-
-
賃料
8万円/月
-
管理費
-
-
礼金
-
-
敷金
2ヶ月
-
共益費
-
-
ほか初期費用
-
-
その他諸費用
-
-
更新料
-
-
火災(家財)保険
要加入
-
駐車場
近隣別途契約
-
町内費
-
-
バイク料金
-
-
鍵交換費
-
-
清掃料
-
-
更新事務手数料
-
-
保証区分
連帯保証人のみ
-
保証会社
区分:指定なし
-
-
連帯保証人
[区分]
要
-
-
仲介手数料
88,000円
-
手数料負担割合
貸主:0%
借主:100%
-
手数料配分割合
元付:50%
客付:50%
-
築年月
不詳
-
利用制限
-
-
学校区
千手小学校(435m)・南中学校(296m)
-
設備
2階以上
-
入居時期
即入居可
-
取引態様
仲介
-
情報登録日
2026/02/16
-
次回更新予定日
2026/05/15
備考
※駐車場、別途契約10,000円
取扱い会社
株式会社 和興不動産
-
TEL
0258-35-1321
-
所在地
新潟県長岡市旭町2-3-1
-
交通
長岡駅より徒歩8分
-
営業時間
9:00~18:00/定休日:日曜・祝日(事前予約で日曜・祝日のご案内可能です)
-
免許番号
新潟県知事第(16)0387号
-
所属団体名
全国宅地建物取引業保証協会
-
取引態様
仲介
Copyright (C) 株式会社 コモンライフ・コーポレーション. All Rights Reserved.
不動産検索サイト「らくすむ」及び関連サイトに記載の不動産情報は、会員規約に則り、情報提供会社様の責任のもとに発信されております。
不動産の賃借、購入に関しては賃借者、購入者ご自身が情報を確認され、会社企業様から説明を受けられたうえで判断をお願いいたします。
不動産検索サイト「らくすむ」及び関連サイトに記載の不動産情報、写真、デザイン、コンテンツなどの無断転載・転用・複製など禁止します。