
第2コーポ関原 詳細
2号室
お気に入り
追加済み
物件画像を詳しく見る

関原のアパートです。
物件概要
-
賃料
3.8万円/月
-
管理費
なし
-
敷/礼
なし/
なし
-
間取り
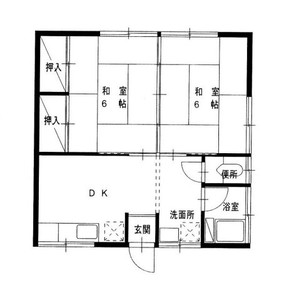
2DK (和室:6畳、6畳)、6和、6和、DK
-
広さ
40.57㎡
/12.27坪
-
階建
地上2階建
-
築年数
1973年8月(築52年)
-
種別
アパート・マンション・一戸建て
-
住所
新潟県長岡市関原南2丁目4237
物件へのルート表示
-
交通
駅:信越線 来迎寺駅から徒歩94分、バス:関原南から徒歩7分
-
物件コード
00004-100175
-
物件名
第2コーポ関原
-
交通
駅:信越線 来迎寺駅から徒歩94分、バス:関原南から徒歩7分
-
所在地
新潟県長岡市関原南2丁目4237
物件へのルート表示
-
物件種別
アパート・マンション・一戸建て
-
総戸数
-
-
構造
木造
-
階建
地上2階建
-
所在階/階数
1階/2階
-
号室
2号室
-
専有面積
40.57㎡
/12.27坪
-
方位
-
-
間取り
2DK (和室:6畳、6畳)、6和、6和、DK
-
賃料
3.8万円/月
-
管理費
-
-
礼金
-
-
敷金
-
-
共益費
-
-
ほか初期費用
-
-
その他諸費用
-
-
更新料
-
-
火災(家財)保険
要加入
-
駐車場
-
町内費
実費
-
バイク料金
-
-
鍵交換費
17,600円
-
清掃料
-
-
更新事務手数料
-
-
保証区分
保証会社+緊急連絡先
-
保証会社
区分:加入要
保証会社名:ジェイリース
①Jフラット 初回保証料 月額の総賃料70%、継続保証料 月額1,200円
②学生プラン 初回保証料 一律 2万円、継続保証料 月額1,000円
③留学生 連帯保証人 学校、敷金 4万円
-
家賃保証金
26,600円
-
連帯保証人
[区分]
不要
-
-
仲介手数料
41,800円
-
手数料負担割合
貸主:-%
借主:100%
-
手数料配分割合
元付:50%
客付:50%
-
築年月
1973年8月(築52年)
-
利用制限
ペット:不可、楽器:不可
-
学校区
関原小学校(721m)・関原中学校(196m)
-
設備
閑静な住宅街、駐車場1台無料、角住居、バストイレ別、温水洗浄便座、洗面所独立、都市ガス、洗濯機置場 室内、押入、各居室照明、即入居可、保証会社利用可能、敷金・礼金不要、保証会社要加入
-
入居時期
即入居可
-
取引態様
仲介
-
情報登録日
2025/11/21
-
次回更新予定日
2026/06/03
備考
シャワーは釜タイプになります。写真は参考写真になります。
取扱い会社
有限会社 五十嵐商事
-
TEL
0258-28-1414
-
所在地
新潟県長岡市三ツ郷屋2丁目5-23
-
交通
西長岡案内所バス停徒歩2分
-
営業時間
平日9時~18時・土曜日10時~15時(3月休みなし)/定休日:日曜、祝祭日、年末年始(12/27~1/4)
-
免許番号
新潟県知事(14)1645号
-
所属団体名
新潟県宅地建物取引業協会 長岡支部
-
取引態様
仲介
Copyright (C) 株式会社 コモンライフ・コーポレーション. All Rights Reserved.
不動産検索サイト「らくすむ」及び関連サイトに記載の不動産情報は、会員規約に則り、情報提供会社様の責任のもとに発信されております。
不動産の賃借、購入に関しては賃借者、購入者ご自身が情報を確認され、会社企業様から説明を受けられたうえで判断をお願いいたします。
不動産検索サイト「らくすむ」及び関連サイトに記載の不動産情報、写真、デザイン、コンテンツなどの無断転載・転用・複製など禁止します。