新潟県柏崎市東本町3丁目7-25 事務所 5.5万円の物件情報

物件名
所在地
面積
間取り
所在階
築年数
方位
賃料
管理費等
共益費
敷金
保証金
礼金
種別
構造
東本町事務所
新潟県柏崎市東本町3丁目7-25
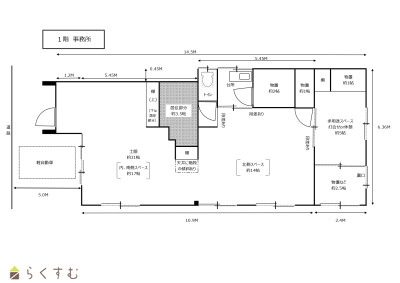
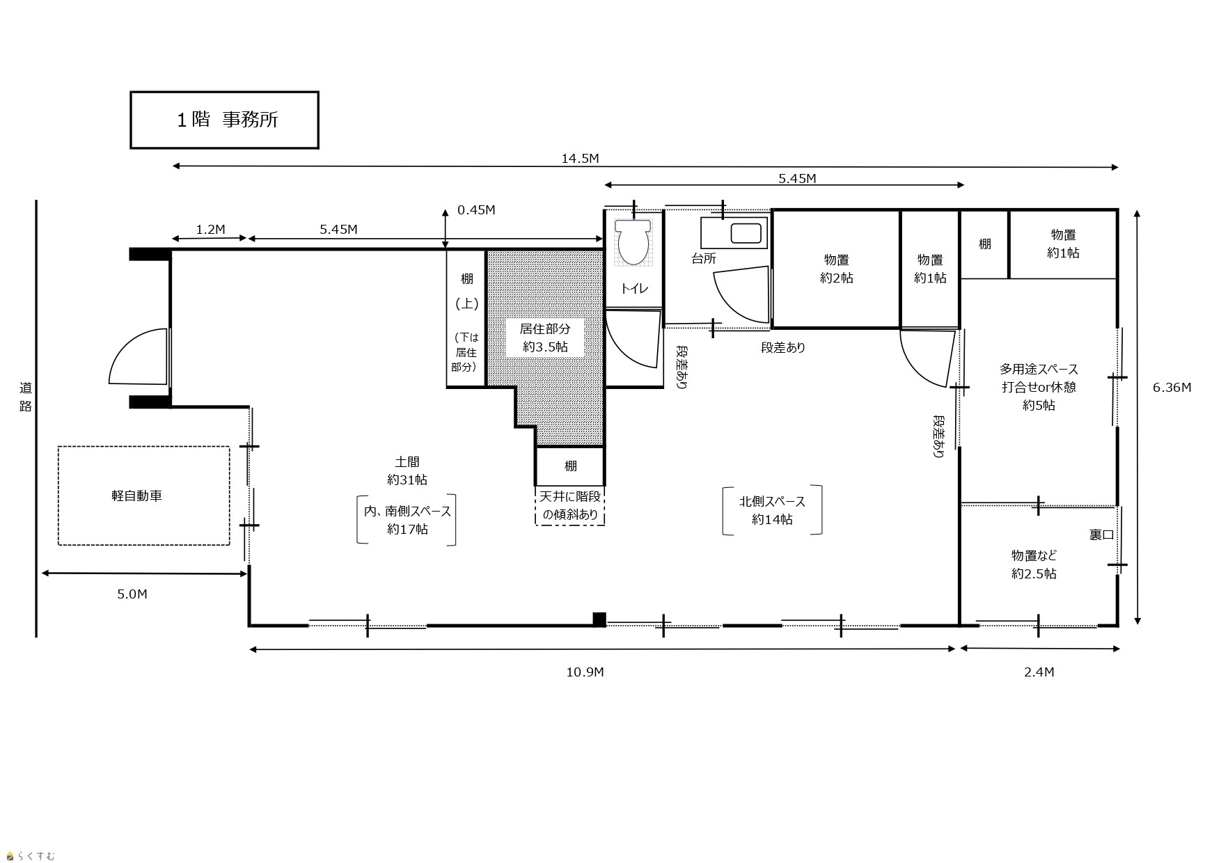
66.87㎡
(20.22坪)
-
1階
47年
-
5.5万円
なし
なし
1ヶ月
なし
1ヶ月
事務所
木造
  • 東本町事務所
    株式会社オフィス・シナダ
  • この物件を問い合わせる/無料
  • TEL: 0257-41-5077 0257-41-5077

物件画像

外観
間取り
物件画像
※画像クリックで拡大表示
外観
物件画像
※画像クリックで拡大表示
間取り
詳細画像
物件画像
土間
物件画像
土間
物件画像
土間
物件画像
多目的
物件画像
キッチン
物件画像
トイレ
物件画像
キッチン


物件概要

物件コード 00178-100237
物件名 東本町事務所
交通 駅:越後線 東柏崎駅から徒歩9分、バス:柏崎(営)入口から徒歩4分
所在地 新潟県柏崎市東本町3丁目7-25
物件種別 事務所
総戸数 2戸
構造 木造 階建 地上2階建
所在階/階数 1階/2階 号室 -
面積 66.87㎡ /20.22坪 方位 -
間取り -
賃料 5.5万円/月
管理費 -
礼金 1ヶ月
敷金 1ヶ月
ほか初期費用 - その他諸費用 -
更新料 - 火災(家財)保険 要加入
共益費 - 町内費 -
駐車場 3台可能(事務所前1台は軽)4台目から1台4,000円 バイク料金 -
鍵交換費 - 清掃料 -
更新事務手数料 -
保証区分 連帯保証人のみ
保証会社 区分:指定なし
-
連帯保証人 区分:要
-
仲介手数料 60,500円
築年月 1978年12月(築47年)
利用制限 学生:不可、単身者:不可、二人入居:不可、シニア(60歳以上)入居:不可、ペット:不可、楽器:不可、事務所利用:可、ルームシェア:不可
学校区 比角小学校(606m)・第二中学校(779m)
設備 1階、即引き渡し可、駐車場あり
入居時期 即入居可
取引態様 仲介
備考 -
手数料負担割合/配分割合 貸主:-%   借主:100% / 元付:50%   客付:50%  
取り扱い会社

株式会社オフィス・シナダ

新潟県柏崎市西港町4番19号

情報登録日 2025/11/18 次回更新予定日 2026/04/28
  • 東本町事務所
    株式会社オフィス・シナダ
  • この物件を問い合わせる/無料
  • TEL: 0257-41-5077 0257-41-5077

この物件の地図・周辺情報・行政情報

この物件の周辺情報・行政情報を詳しく見る
【周辺情報】
物件の近くにあるコンビニや銀行・学校など、アイコン付のマップで詳しく表示できます!
【行政情報】
水道料や下水道料・ガス料金など、暮らしに関係のある情報を表示しています。
セブン-イレブン 柏崎錦町店(コンビニ)まで330m
ファミリーマート 柏崎扇町店(コンビニ)まで640m
ローソン 柏崎学校町店(コンビニ)まで860m
セブン-イレブン 柏崎新花町店(コンビニ)まで920m
ウエルシア柏崎錦町店 (調剤薬局)(ドラッグストア)まで240m
(有)石黒薬局(ドラッグストア)まで470m
(株)石川薬局 本店(ドラッグストア)まで470m
おうぎまち薬局(ドラッグストア)まで420m
(株)石川薬局 中央店(ドラッグストア)まで680m
太刀川薬品(ドラッグストア)まで640m
柏崎扇町薬局(ドラッグストア)まで620m
石川薬局(ドラッグストア)まで820m
中央町薬局(ドラッグストア)まで810m
大手薬局 柏崎店(ドラッグストア)まで860m
あらき眼科(病院)まで470m
まえかわ歯科クリニック(病院)まで500m
つよしクリニック(病院)まで450m
医療法人社団 本田医院(病院)まで520m
柏崎市刈羽郡医師会柏崎メジカルセンター(病院)まで600m
樋口内科医院扇町(病院)まで550m
むなかた眼科医院(病院)まで670m
のざわ内科医院(病院)まで870m
扇町皮膚科医院(病院)まで870m
セブン銀行ATM(銀行)まで340m
柏崎信用金庫 諏訪町支店(銀行)まで700m
セブン銀行ATM(銀行)まで920m
柏崎東本町郵便局(郵便局)まで540m
柏崎四谷郵便局(郵便局)まで700m

※カメラのアイコンがある場合は、マウスをポイントするとその施設の画像がご覧いただけます。


担当取扱い店舗情報

取扱い店舗画像
株式会社オフィス・シナダ
TEL: 0257-41-5077
所在地: 新潟県柏崎市西港町4番19号
交通: 柏崎駅
営業時間: 10:00~18:00土日は10:00~17:00/定休日:水曜日・祝日
免許番号: 新潟県知事(2)第5342号
所属団体名: 公社 宅地建物取引協会 柏崎支部
取引態様: 仲介
ホームページ: http://www.officeshinada.co.jp/