| 物件コード | 00178-100237 | ||
|---|---|---|---|
| 物件名 | 東本町事務所 | ||
| 交通 | 駅:越後線 東柏崎駅から徒歩9分、バス:柏崎(営)入口から徒歩4分 | ||
| 所在地 | 新潟県柏崎市東本町3丁目7-25 | ||
| 物件種別 | 事務所 | ||
| 総戸数 | 2戸 | ||
| 構造 | 木造 | 階建 | 地上2階建 |
| 所在階/階数 | 1階/2階 | 号室 | - |
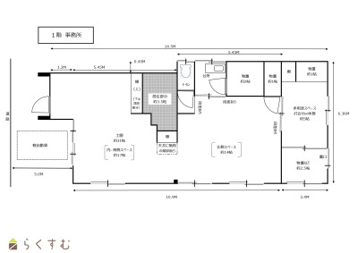
| 面積 | 66.87㎡ (20.22坪) | 方位 | - |
| 間取り |
|
||
| 賃料 | 5.5万円/月
|
管理費 | - |
| 礼金 | 1ヶ月
|
敷金 | 1ヶ月
|
| ほか初期費用 | - | その他諸費用 | - |
| 更新料 | - | 火災(家財)保険 | 要加入 |
| 共益費 | - | 町内費 | - |
| 駐車場 | 3台可能(事務所前1台は軽)4台目から1台4,000円 | バイク料金 | - |
| 鍵交換費 | - | 清掃料 | - |
| 更新事務手数料 | - | ||
| 保証区分 |
連帯保証人のみ |
||
| 保証会社 |
区分:指定なし - |
||
| 連帯保証人 |
区分:要 - |
||
| 仲介手数料 |
60,500円
|
||
| 築年月 | 1978年12月(築47年) | ||
| 利用制限 | 学生:不可、単身者:不可、二人入居:不可、シニア(60歳以上)入居:不可、ペット:不可、楽器:不可、事務所利用:可、ルームシェア:不可 | ||
| 学校区 | 比角小学校(606m)・第二中学校(779m) | ||
| 設備 | 1階、即引き渡し可、駐車場あり | ||
| 入居時期 | 即入居可 | ||
| 取引態様 | 仲介 | ||
| 備考 | - | ||
| 手数料負担割合/配分割合 | 貸主:-% 借主:100% / 元付:50% 客付:50% | ||
| 情報登録日 | 2025/11/18 | 次回更新予定日 | 2026/04/28 |
|
|
|
|
|
|
| TEL: | 0257-41-5077 |
|---|---|
| 所在地: | 新潟県柏崎市西港町4番19号 |
| 交通: | 柏崎駅 |
| 営業時間: | 10:00~18:00土日は10:00~17:00/定休日:水曜日・祝日 |
| 免許番号: | 新潟県知事(2)第5342号 |
| 所属団体名: | 公社 宅地建物取引協会 柏崎支部 |
| 取引態様: | 仲介 |