新潟県長岡市上除町西原甲1945番5 新築一戸建て 3LDK 32,160,000円の物件情報

《★完成前ご契約特典》 家具セット&カーテンをプレゼントいたします♪

物件名/所在地 詳細 価格
長岡市上除町A 新築戸建住宅
新潟県長岡市上除町西原甲1945番5
  • 土地面積
    :180.46㎡ /54.58坪
  • 建物面積
    :100.2㎡ /30.31坪
  • 間取り
    :3LDK
  • 築年月
    :2025年9月
32,160,000
  • 長岡市上除町A 新築戸建住宅
    株式会社 ステーツ
  • この物件を問い合わせる/無料
  • TEL: 080-8755-4353 080-8755-4353

物件画像

外観
間取り
物件画像
※画像クリックで拡大表示
外観イメージ アルミカーポート付! ※植栽はイメージです。
物件画像
※画像クリックで拡大表示
全体 間取り図
詳細画像
物件画像
【★完成前ご契約特典】 家具セット&カーテン プレゼント!
物件画像
内観イメージ(LDK) ※家具・小物などはイメージです。
物件画像
外観イメージ(南東側)
物件画像
建物配置図
物件画像
内観イメージ(リビング)①
物件画像
内観イメージ(リビング)②
物件画像
内観イメージ(窓際ベンチ)
物件画像
内観イメージ(ダイニング・キッチン)
物件画像
内観イメージ(キッチン側から見るLDK)
物件画像
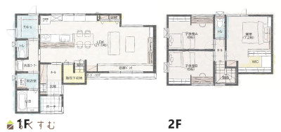
1階 間取り図
物件画像
2階 間取り図
物件画像
【省令準耐火構造の住まい】耐火性能が高く、火災に強い仕様
物件画像
【長期保証】 構造・雨漏り 初期保証20年・最長60年保証
物件画像
【安心の長期保証】 設備保証10年 ※修理対象設備のみ
物件画像
■地盤改良済み。地盤保証20年で万が一の事故の時も安心
物件画像
■不同沈下が起きにくい面で支える頑強構造【ベタ基礎】
物件画像
■災害時の拠点となる消防署・警察署と同レベルの耐震等級3
物件画像
■第三者機関 JIOの瑕疵担保保険加入済み
物件画像
地図画像


物件概要

人気の日越小学校エリア。原信・ウエルシアまで徒歩5分以内!五荘山公園まで徒歩1分。長岡高速インター近く、通勤・レジャーの移動が便利♪
物件コード 00243-200017
物件名 長岡市上除町A 新築戸建住宅
交通 駅:JR信越本線「長岡」、バス:越後交通「上の原」から徒歩5分
物件所在地 新潟県長岡市上除町西原甲1945番5
物件種別 新築一戸建て
構造 木造 階建 地上2階建
建ぺい率/容積率 60%/200%
建物面積 1階 57.97㎡/ 2階 42.23㎡/ 計 100.2㎡ /30.31坪
土地面積 180.46㎡ /54.58坪
築年月 2025年9月(築3ヶ月)
入居(引き渡し)時期 2025年10月 予定
用途地域 第1種中高層住居専用地域 地目
都市計画 市街化区域 学校区 日越小学校(1,900m)・西中学校(3,400m)
形状 - 道路 南6.0m 接面12.1m
私道 - その他の制限 -
  • 長岡市上除町A 新築戸建住宅
    株式会社 ステーツ
  • この物件を問い合わせる/無料
  • TEL: 080-8755-4353 080-8755-4353

物件詳細情報

所在階/階数 - 号室 -
販売価格 32,160,000円 方位
間取り 3LDK (洋室:7.2、6.0、6.0)
LDK 21.5
■土地+建物+外構 セットの価格です。
専有面積 - バルコニー面積 -
その他面積 - 駐車場 -
管理費 - 修繕積立金 -
現況 指定なし
仲介手数料 なし
利用制限 -
設備 前面道路6m以上、日当り良好、閑静な住宅街、スーパー近く、設計住宅性能評価付き、耐震構造、瑕疵担保保険付き、LDK15畳以上、全室フローリング、駐車場3台以上、TVインターホン、複層ガラス、ディンプルキー、システムキッチン、IHクッキングヒーター、食器洗浄乾燥機、追いだき機能付き、浴室暖房乾燥機、バス1坪以上、温水洗浄便座、シャワー付き洗面台、エアコン、24時間換気システム、オール電化、省エネ給湯、高気密高断熱住宅、都市ガス、上水道、下水道、電気、ウォークインクローゼット、床下収納、照明器具付き
取引態様 売主
備考 【周辺環境】
・暮らしやすい生活環境が整った閑静な住宅地です!
・前面道路は消雪パイプ完備で冬場も安心
・原信・ウエルシアまで徒歩5分以内!五荘山公園まで徒歩1分。
・長岡高速インター近く、通勤・レジャーの移動が便利♪
・全14区画の新しい分譲地でキレイ

【建物】
・広々21.5帖のLDK。窓際ベンチのある開放感あふれるリビング空間
・シューズクローク、パントリー、ウォークインクローゼットなど収納も豊富
・天井付け物干しスペース付のサンルームは、雨や雪の日でもお好きなタイミングで洗濯物が干せます。
・一直線にまとめた水回りで移動距離を短くラクに!快適な回遊型動線で家事の負担を減らします。
取り扱い会社

株式会社 ステーツ

新潟県新潟市江南区東早通1-1-40

情報登録日 2025/05/07 次回更新予定日 2025/12/19
取引条件有効期限 2025/12/31
  • 長岡市上除町A 新築戸建住宅
    株式会社 ステーツ
  • この物件を問い合わせる/無料
  • TEL: 080-8755-4353 080-8755-4353

この物件の地図・周辺情報・行政情報

この物件の周辺情報・行政情報を詳しく見る
【周辺情報】
物件の近くにあるコンビニや銀行・学校など、アイコン付のマップで詳しく表示できます!
【行政情報】
水道料や下水道料・ガス料金など、暮らしに関係のある情報を表示しています。

担当取扱い店舗情報

取扱い店舗画像
株式会社 ステーツ
TEL: 025-383-3003
所在地: 新潟県新潟市江南区東早通1-1-40
交通:
営業時間: 10:00~18:00/定休日:水・木曜日
免許番号: 国土交通大臣(5)第6810号
所属団体名: 公社 新潟県宅地建物取引協会 新潟支部
取引態様: 売主
ホームページ: https://www.states.co.jp/