| 人気の日越小学校エリア。原信・ウエルシアまで徒歩5分以内!五荘山公園まで徒歩1分。長岡高速インター近く、通勤・レジャーの移動が便利♪ | |||
| 物件コード | 00243-200017 | ||
|---|---|---|---|
| 物件名 | 長岡市上除町A 新築戸建住宅 | ||
| 交通 | 駅:JR信越本線「長岡」、バス:越後交通「上の原」から徒歩5分 | ||
| 物件所在地 | 新潟県長岡市上除町西原甲1945番5 | ||
| 物件種別 | 新築一戸建て | ||
| 構造 | 木造 | 階建 | 地上2階建 |
| 建ぺい率/容積率 | 60%/200% | ||
| 建物面積 | 1階 57.97㎡/ 2階 42.23㎡/ 計 100.2㎡ /30.31坪 | ||
| 土地面積 | 180.46㎡ /54.58坪 | ||
| 築年月 | 2025年9月(築3ヶ月) | ||
| 入居時期 | 2025年10月 予定 | ||
| 用途地域 | 第1種中高層住居専用地域 | 地目 | 畑 |
| 都市計画 | 市街化区域 | 学校区 | 日越小学校(1,900m)・西中学校(3,400m) |
| 形状 | - | 道路 | 南6.0m 接面12.1m |
| 私道 | - | ||
| 所在階/階数 | - | 号室 | - |
|---|---|---|---|
| 販売価格 | 32,160,000円 | 方位 | 南 |
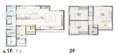
| 間取り |
3LDK (洋室:7.2、6.0、6.0) LDK 21.5 ■土地+建物+外構 セットの価格です。 |
||
| 専有面積 | - | バルコニー面積 | - |
| その他面積 | - | 駐車場 | - |
| 管理費 | - | 修繕積立金 | - |
| 現況 | 指定なし | ||
| 仲介手数料 | なし | ||
| 利用制限 | - | ||
| 設備 | 前面道路6m以上、日当り良好、閑静な住宅街、スーパー近く、設計住宅性能評価付き、耐震構造、瑕疵担保保険付き、LDK15畳以上、全室フローリング、駐車場3台以上、TVインターホン、複層ガラス、ディンプルキー、システムキッチン、IHクッキングヒーター、食器洗浄乾燥機、追いだき機能付き、浴室暖房乾燥機、バス1坪以上、温水洗浄便座、シャワー付き洗面台、エアコン、24時間換気システム、オール電化、省エネ給湯、高気密高断熱住宅、都市ガス、上水道、下水道、電気、ウォークインクローゼット、床下収納、照明器具付き | ||
| 取引態様 | 売主 | ||
| 備考 | 【周辺環境】 ・暮らしやすい生活環境が整った閑静な住宅地です! ・前面道路は消雪パイプ完備で冬場も安心 ・原信・ウエルシアまで徒歩5分以内!五荘山公園まで徒歩1分。 ・長岡高速インター近く、通勤・レジャーの移動が便利♪ ・全14区画の新しい分譲地でキレイ 【建物】 ・広々21.5帖のLDK。窓際ベンチのある開放感あふれるリビング空間 ・シューズクローク、パントリー、ウォークインクローゼットなど収納も豊富 ・天井付け物干しスペース付のサンルームは、雨や雪の日でもお好きなタイミングで洗濯物が干せます。 ・一直線にまとめた水回りで移動距離を短くラクに!快適な回遊型動線で家事の負担を減らします。 |
||
| 情報登録日 | 2025/05/07 | 次回更新予定日 | 2026/01/02 |
| 取引条件有効期限 | 2025/12/31 | ||
|
|
|
|
|
| TEL: | 025-383-3003 |
|---|---|
| 所在地: | 新潟県新潟市江南区東早通1-1-40 |
| 交通: | |
| 営業時間: | 10:00~18:00/定休日:水・木曜日 |
| 免許番号: | 国土交通大臣(5)第6810号 |
| 所属団体名: | 公社 新潟県宅地建物取引協会 新潟支部 |
| 取引態様: | 売主 |