新潟県長岡市表町3丁目3-3 中古マンション 3LDK 12,800,000円の物件情報

長岡駅まで徒歩8分 現在リフォーム中 令和8年4月末完成予定

物件名/所在地 詳細 価格
ダイアパレス表町
302号室
新潟県長岡市表町3丁目3-3
  • 専有面積
    :67.06㎡ /20.28坪
  • 間取り
    :3LDK
  • 築年月
    :1990年7月
12,800,000
  • ダイアパレス表町
    ふどうさんの相談所 (ライフデザイン合同会社 イオン長岡店)
  • この物件を問い合わせる/無料
  • TEL: 0258-94-4370 0258-94-4370

物件画像

外観
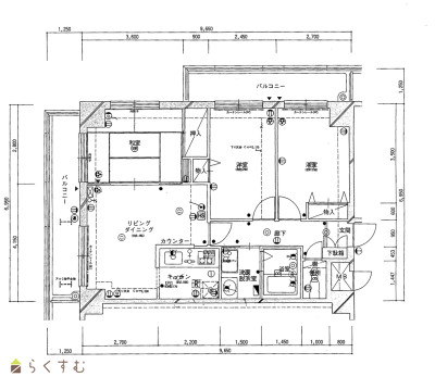
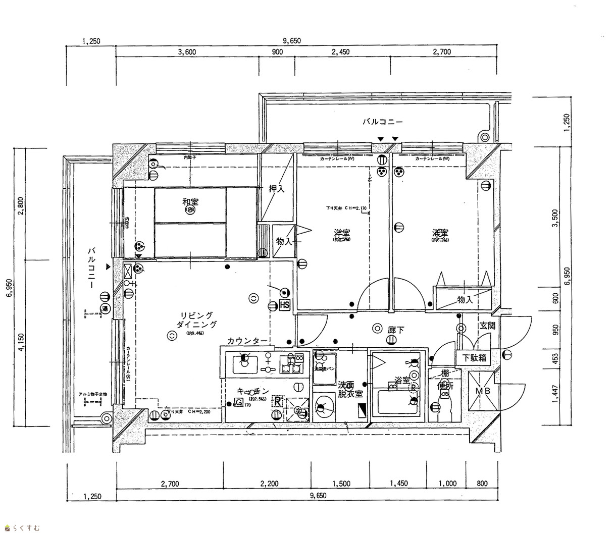
間取り
物件画像
※画像クリックで拡大表示
外観
物件画像
※画像クリックで拡大表示
間取り
詳細画像
物件画像
印刷用地図


物件概要

長岡駅まで徒歩8分 現在リフォーム中 令和8年4月末完成予定
物件コード 00039-200295
物件名 ダイアパレス表町
交通 駅:上越新幹線 長岡駅から徒歩8分、バス:スズラン通りから徒歩5分
物件所在地 新潟県長岡市表町3丁目3-3
物件種別 中古マンション
構造 鉄骨鉄筋コン 階建 地上12階建
建ぺい率/容積率 80%/400%
建物面積 -
土地面積 -
築年月 1990年7月(築35年)
入居(引き渡し)時期 相談
用途地域 商業地域 地目 宅地
都市計画 市街化区域 学校区 表町小学校(361m)・東中学校(1,033m)
形状 - 道路 -
私道 - その他の制限 準防火地域
  • ダイアパレス表町
    ふどうさんの相談所 (ライフデザイン合同会社 イオン長岡店)
  • この物件を問い合わせる/無料
  • TEL: 0258-94-4370 0258-94-4370

物件詳細情報

所在階/階数 3階/12階 号室 302号室
販売価格 12,800,000円 方位
間取り 3LDK (和室:6畳) (洋室:6、6)
LDK11.9
専有面積 67.06㎡ /20.28坪 バルコニー面積 15.75㎡ /4.76坪
その他面積 - 駐車場 -
管理費 - 修繕積立金 -
現況 空家
仲介手数料 488,400円
利用制限 ペット:不可、楽器:相談
設備 角部屋、2階以上、日当り良好、外観タイル張り、洗濯機置き場、エレベーター、集会所、和室あり、駐輪場、南向き、管理人常駐(日中)、セキュリティー良し、TV付きインターホン、エントランスオートロック、システムキッチン、3口コンロ、温水洗浄便座、シャワー付き洗面台、エアコン、都市ガス、公営水道、下水道、バルコニー2面以上、全室収納あり、シューズBOX
取引態様 売主
備考 令和8年4月リフォーム予定。【リフォーム内容】天井・壁クロス一部張替、床一部張替え、畳表替え、キッチン新品交換、浴室新品交換。
取り扱い会社

ふどうさんの相談所 (ライフデザイン合同会社 イオン長岡店)

新潟県長岡市古正寺1-249-1イオン長岡店3F

情報登録日 2026/04/01 次回更新予定日 2026/05/14
取引条件有効期限 2026/06/30
  • ダイアパレス表町
    ふどうさんの相談所 (ライフデザイン合同会社 イオン長岡店)
  • この物件を問い合わせる/無料
  • TEL: 0258-94-4370 0258-94-4370

この物件の地図・周辺情報・行政情報

この物件の周辺情報・行政情報を詳しく見る
【周辺情報】
物件の近くにあるコンビニや銀行・学校など、アイコン付のマップで詳しく表示できます!
【行政情報】
水道料や下水道料・ガス料金など、暮らしに関係のある情報を表示しています。

担当取扱い店舗情報

取扱い店舗画像
ふどうさんの相談所 (ライフデザイン合同会社 イオン長岡店)
TEL: 0258-94-4370
所在地: 新潟県長岡市古正寺1-249-1イオン長岡店3F
交通: 長岡駅
営業時間: 10:00~20:00/定休日:年末年始・特別日はお休みいたします
免許番号: 新潟県知事(3)第5090号
所属団体名: 全日本不動産協会 新潟県本部
取引態様: 売主
ホームページ: http://life-dn.com