| 長岡駅まで徒歩8分 現在リフォーム中 令和8年4月末完成予定 | |||
| 物件コード | 00039-200295 | ||
|---|---|---|---|
| 物件名 | ダイアパレス表町 | ||
| 交通 | 駅:上越新幹線 長岡駅から徒歩8分、バス:スズラン通りから徒歩5分 | ||
| 物件所在地 | 新潟県長岡市表町3丁目3-3 | ||
| 物件種別 | 中古マンション | ||
| 構造 | 鉄骨鉄筋コン | 階建 | 地上12階建 |
| 建ぺい率/容積率 | 80%/400% | ||
| 建物面積 | - | ||
| 土地面積 | - | ||
| 築年月 | 1990年7月(築35年) | ||
| 入居時期 | 相談 | ||
| 用途地域 | 商業地域 | 地目 | 宅地 |
| 都市計画 | 市街化区域 | 学校区 | 表町小学校(361m)・東中学校(1,033m) |
| 形状 | - | 道路 | - |
| 私道 | - | ||
| 所在階/階数 | 3階/12階 | 号室 | 302号室 |
|---|---|---|---|
| 販売価格 | 12,800,000円 | 方位 | 南 |
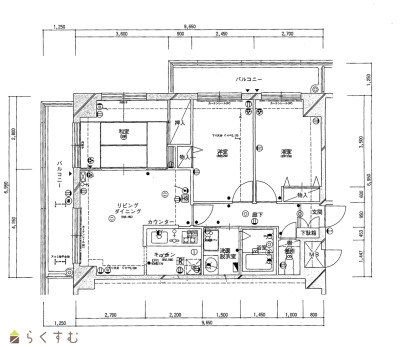
| 間取り |
3LDK (和室:6畳) (洋室:6、6) LDK11.9 |
||
| 専有面積 | 67.06㎡ /20.28坪 | バルコニー面積 | 15.75㎡ /4.76坪 |
| その他面積 | - | 駐車場 | - |
| 管理費 | - | 修繕積立金 | - |
| 現況 | 空家 | ||
| 仲介手数料 | 488,400円 | ||
| 利用制限 | ペット:不可、楽器:相談 | ||
| 設備 | 角部屋、2階以上、日当り良好、外観タイル張り、洗濯機置き場、エレベーター、集会所、和室あり、駐輪場、南向き、管理人常駐(日中)、セキュリティー良し、TV付きインターホン、エントランスオートロック、システムキッチン、3口コンロ、温水洗浄便座、シャワー付き洗面台、エアコン、都市ガス、公営水道、下水道、バルコニー2面以上、全室収納あり、シューズBOX | ||
| 取引態様 | 売主 | ||
| 備考 | 令和8年4月リフォーム予定。【リフォーム内容】天井・壁クロス一部張替、床一部張替え、畳表替え、キッチン新品交換、浴室新品交換。 | ||
| 情報登録日 | 2026/04/01 | 次回更新予定日 | 2026/05/13 |
| 取引条件有効期限 | 2026/06/30 | ||
|
|
|
|
| TEL: | 0258-94-4370 |
|---|---|
| 所在地: | 新潟県長岡市古正寺1-249-1イオン長岡店3F |
| 交通: | 長岡駅 |
| 営業時間: | 10:00~20:00/定休日:年末年始・特別日はお休みいたします |
| 免許番号: | 新潟県知事(3)第5090号 |
| 所属団体名: | 全日本不動産協会 新潟県本部 |
| 取引態様: | 売主 |