0
柏崎市安田 売工場(食品工業) 詳細
外観
外観1
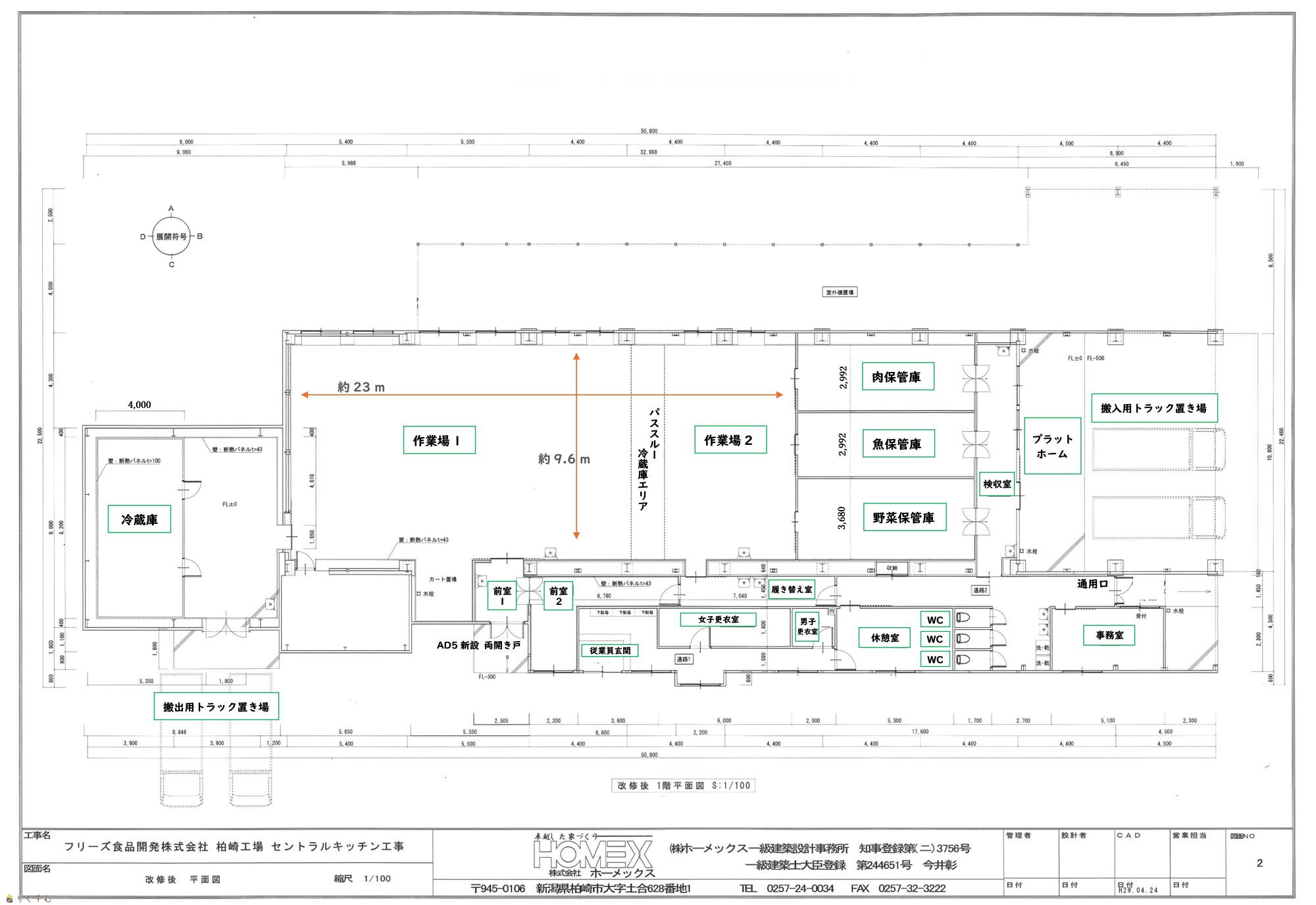
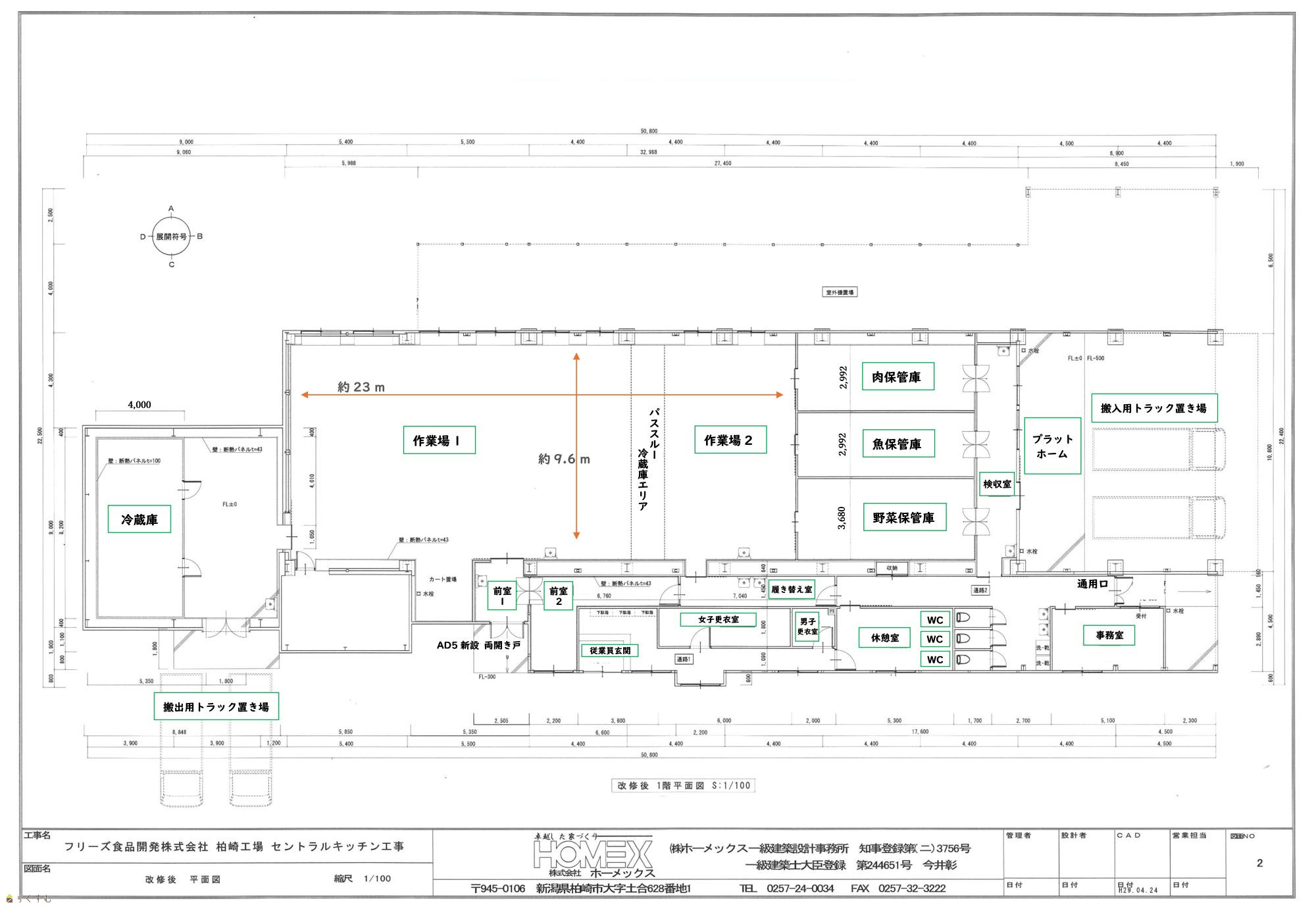
間取り
平面図
その他の画像
出荷場
受入れ
別棟作業場
駐車スペース
事務所スペース
トイレ
サニタリー
休憩室
受入れスペース
保管庫1
保管庫2
調理室1
調理室2
パスツルー冷蔵庫
調理室3
調理室4
調理室5
出荷室
プレハブ冷凍庫
地図画像
物件詳細へ戻る
協会の概要
|
プライバシーポリシー
|
PC版
Copyright(C)柏崎不動産業協会.
All Rights Reserved.