0
柏崎市米山町売住宅 詳細
外観
外観
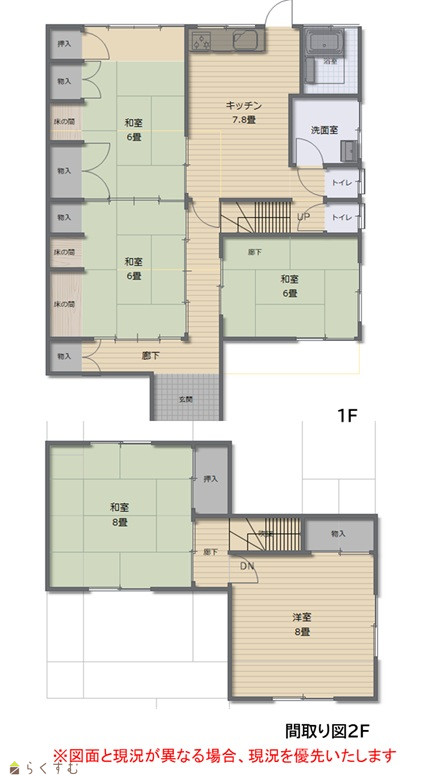
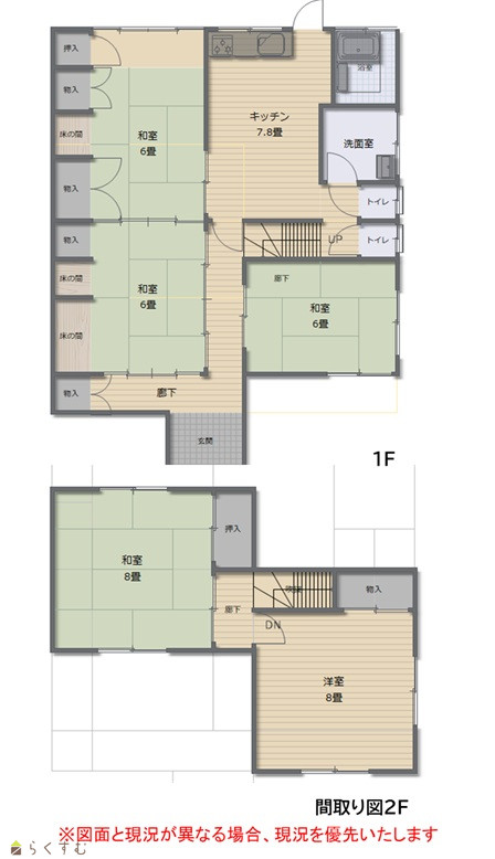
間取り
間取り図
その他の画像
和室
DK
風呂
洗面脱衣室
ホーメックス不動産サイト
地図画像
物件詳細へ戻る
協会の概要
|
プライバシーポリシー
|
PC版
Copyright(C)柏崎不動産業協会.
All Rights Reserved.