0
髙野貸家(藤井) 詳細
外観
外観写真
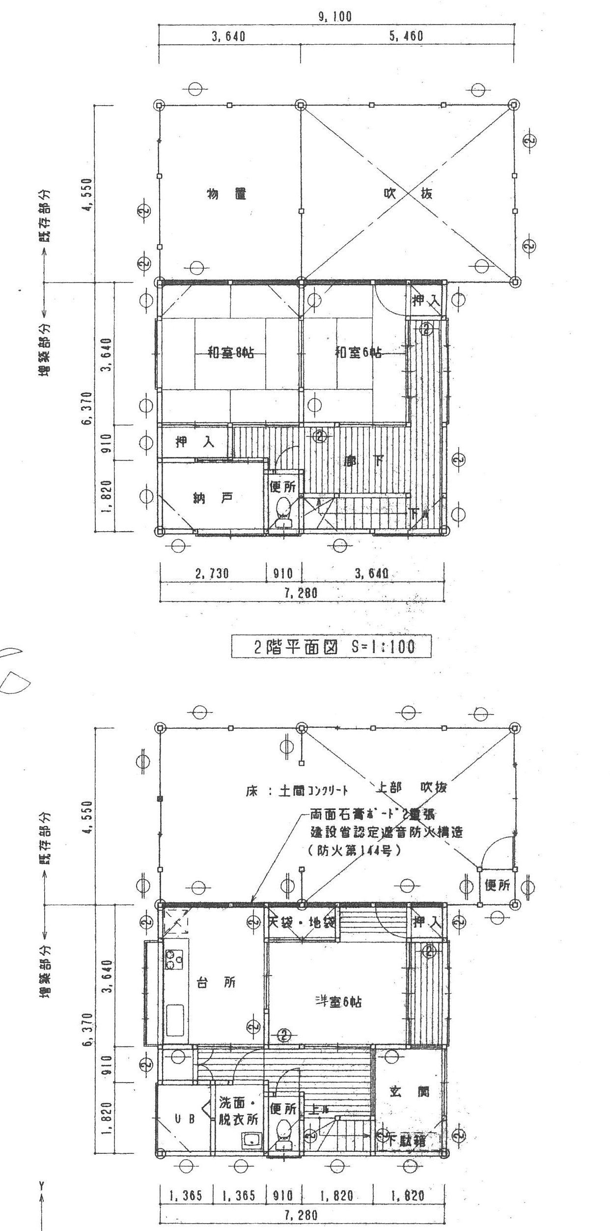
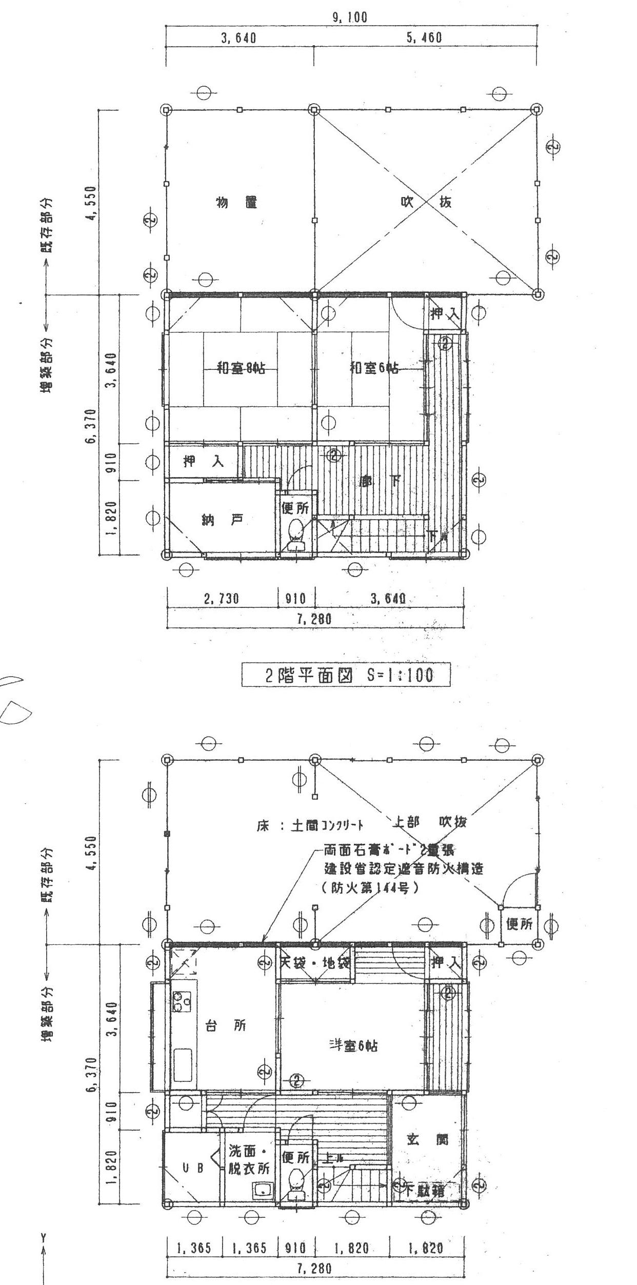
間取り
間取り
その他の画像
玄関
下駄箱
洋室
洋室
キッチン
洗面所
洗濯機置き場
バスルーム
トイレ
収納
和室
和室
和室
トイレ
カーポート
印刷用地図
物件詳細へ戻る
協会の概要
|
プライバシーポリシー
|
PC版
Copyright(C)柏崎不動産業協会.
All Rights Reserved.