
柏崎市 下田尻 売住宅 詳細
お気に入り
追加済み
物件画像を詳しく見る
360度画像を詳しく見る

インター近くで、部屋数豊富、広い敷地!!
物件概要
-
物件コード
00251-200003
-
物件名
柏崎市 下田尻 売住宅
-
交通
駅:信越線 茨目駅から徒歩17分、バス:下田尻西から徒歩2分
-
所在地
新潟県柏崎市大字下田尻1758番地
物件へのルート表示
-
物件種別
中古一戸建て
-
構造
木造
-
階建
地上2階建
-
建ぺい率/容積率
70%/200%
-
建物面積
215.81㎡
/65.28坪
-
土地面積
1,023.86㎡
/309.71坪
-
築年月
1971年6月(築54年)
-
入居時期
相談
-
用途地域
無指定
-
地目
宅地
-
都市計画
非線引き都市計画区域
-
形状
-
-
道路
市道柏崎9-62号線 東側 幅員3.4m 他西側道路
-
私道
-
-
その他の制限
要セットバック
物件詳細情報
-
所在階/階数
-
-
号室
-
-
販売価格
4,000,000円
-
方位
指定なし
-
間取り
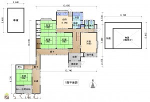
8LDK (和室:10畳、8畳、8畳、6畳、8畳、6畳、7畳) (洋室:7、4)、車庫(19.83㎡)、作業所(77.68㎡)
-
専有面積
-
-
バルコニー面積
-
-
その他面積
-
-
駐車場
-
-
管理費
-
-
修繕積立金
-
-
現況
空家
-
仲介手数料
330,000円
-
おすすめ条件
-
-
学校区
田尻小学校(1,181m)・東中学校(693m)
-
設備
閑静な住宅街、駐車3台以上可能、南向き、追いだき機能付き、バス1坪以上、都市ガス、上水道、下水道、2世帯向き
-
取引態様
一般
-
情報登録日
2025/08/12
-
次回更新予定日
2025/12/29
-
取引条件有効期限
2024/12/31
備考
取扱い会社
株式会社 タカノ建築
Copyright(C)柏崎不動産業協会.
All Rights Reserved.