物件画像を詳しく見る

出雲崎町川西。風情豊かな庭を望む、9DKの中古住宅。敷地内大型車庫・作業所あり。
物件概要
周辺は自然豊かで野鳥の鳴き声も聞こえてきます。
-
物件コード
00190-200295
-
物件名
出雲崎町 中古住宅 土地557坪・建物74坪
-
交通
駅:越後線 出雲崎駅から徒歩14分、バス:出雲崎役場前から徒歩13分
-
所在地
新潟県三島郡出雲崎町大字川西字泉根366番地1
物件へのルート表示
-
物件種別
中古一戸建て
-
構造
木造
-
階建
地上2階建
-
建ぺい率/容積率
-
-
建物面積
247.22㎡
/74.78坪
-
土地面積
1,842.32㎡
/557.3坪
-
築年月
1990年11月(築35年)
-
入居時期
随時入居(引き渡し)可
-
用途地域
無指定
-
地目
宅地、雑種地
-
都市計画
都市計画区域外
-
形状
間口 70.05m × 奥行 49.62m
-
道路
北東側、町道中ノ谷線(幅員:6.1m~11.6m)
-
私道
-
-
その他の制限
-
物件詳細情報
-
所在階/階数
-
-
号室
-
-
販売価格
12,000,000円
-
方位
北東
-
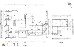
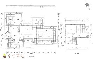
間取り
9DK (和室:6畳、8畳、8畳、8畳、8畳) (洋室:6、8、10、12)
-
専有面積
-
-
バルコニー面積
-
-
その他面積
58.53㎡
/17.7坪
敷地内、作業所
-
駐車場
-
-
管理費
-
-
修繕積立金
-
-
現況
空家
-
仲介手数料
462,000円
-
おすすめ条件
-
-
学校区
出雲崎小学校(816m)・出雲崎中学校(1,239m)
-
設備
日当り良好、閑静な住宅街、駐車3台以上可能、3口コンロ、ガスコンロ設置済み、追いだき機能付き、バス1坪以上、トイレ2か所以上、シャワー付き洗面台、LPG、上水道、下水道、2世帯向き、即引き渡し可能、別荘、田舎暮らし、事業向け
-
取引態様
一般
-
情報登録日
2025/08/19
-
次回更新予定日
2026/04/20
-
取引条件有効期限
2026/03/31
備考
・建物内外部の家財類は、引渡時までに売主にて撤去します。※一部写真は、CGで家具等を消したものであり、現況と異なる可能性がございます。
・現況でのお引渡しとなります。(令和7年6月、建物内部調査記録あり)※建物に傾きがあります。
・居宅面積は、247.22㎡(74.78坪)。その他、敷地内に作業所があります。(58.53㎡/17.70坪)
取扱い会社
株式会社 ライフプラン
-
TEL
0257-23-0500
-
所在地
新潟県柏崎市半田2-1-17
-
交通
R8バイパス「半田中央」交差点角
-
営業時間
9:00~17:30/定休日:土・日・祝(ご予約にて対応可能です。)
-
免許番号
新潟県知事(9)第3314号
-
所属団体名
公社 宅地建物取引業協会 柏崎支部
-
取引態様
一般