
売モーテル 愛花夢・長岡 詳細
お気に入り
追加済み
物件画像を詳しく見る
物件概要
-
物件コード
00090-200040
-
物件名
売モーテル 愛花夢・長岡
-
交通
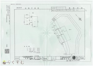
駅:信越線 長鳥駅から徒歩110分、バス:田代から徒歩6分
-
所在地
新潟県刈羽郡刈羽村黒川584-1
物件へのルート表示
-
物件種別
投資物件・その他
-
物件区分
その他
-
構造
鉄筋コン
-
階建
地上3階建
-
建ぺい率/容積率
70%/200%
-
建物面積
1,133.29㎡
/342.82坪
-
土地面積
3,330.98㎡
/1,007.62坪
-
築年月
1990年2月(築36年)
-
入居時期
随時入居(引き渡し)可
-
用途地域
無指定
-
地目
宅地 (現状:宅地)
-
都市計画
非線引き都市計画区域
-
形状
間口 75m × 奥行 42m
-
道路
国道八号線
-
私道
-
-
その他の制限
-
物件詳細情報
-
所在階/階数
-
-
号室
-
-
販売価格
90,000,000円
-
表面利回り
(満室想定時)
-
-
満室想定年収
-
(想定月収:
-
)
-
現行利回り
-
-
現行年間年収
-
-
住戸数
-
-
方位
-
-
間取り
-
-
専有面積
-
-
バルコニー面積
-
-
その他面積
-
-
駐車場
-
-
管理費
-
-
修繕積立金
-
-
現況
指定なし
-
仲介手数料
3,300,000円
-
おすすめ条件
-
-
学校区
刈羽小学校(7,375m)・刈羽中学校(7,674m)
-
設備
事業向け
-
取引態様
一般
-
情報登録日
2025/03/08
-
次回更新予定日
2026/05/15
-
取引条件有効期限
2025/04/04
備考
売買価格は、ご相談に乗ります
オーナーチェンジ物件です。
取扱い会社
アキヤトッカくん柏崎店 テントホーム
-
TEL
0257-24-3711
-
所在地
新潟県柏崎市北半田2丁目1番6号
-
交通
越後線 東柏崎駅 徒歩20分
-
営業時間
10:00~18:00 事前予約で営業時間外でも相談可能/定休日:水曜日、日曜日(事前予約で内見及びご相談可能)
-
免許番号
新潟県知事(12)第2490号
-
所属団体名
新潟県宅地建物取引業協会 柏崎支部
-
取引態様
一般
Copyright(C)柏崎不動産業協会.
All Rights Reserved.