
刈羽村割町新田 詳細
お気に入り
追加済み
物件画像を詳しく見る

2世帯同居、企業様の社員寮をお探しの方へ
物件概要
FP工法の機密性能のよい家です
-
物件コード
00050-200424
-
物件名
刈羽村割町新田
-
交通
駅:越後線 刈羽駅から徒歩18分、バス:割町新田神社前から徒歩1分
-
所在地
新潟県刈羽郡刈羽村割町新田1463-1
物件へのルート表示
-
物件種別
中古一戸建て
-
構造
木造鉄筋コン
-
階建
地上3階建
-
建ぺい率/容積率
-
-
建物面積
448.24㎡
/135.59坪
-
土地面積
669.83㎡
/202.62坪
-
築年月
1998年8月(築27年)
-
入居時期
相談
-
用途地域
無指定
-
地目
宅地
-
都市計画
都市計画区域外
-
形状
間口 21.9m × 奥行 35.9m
-
道路
県道黒部・柏崎線(369号線)
-
私道
-
-
その他の制限
-
物件詳細情報
-
所在階/階数
-
-
号室
-
-
販売価格
23,000,000円
-
方位
-
-
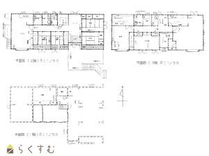
間取り
6LDK (和室:7.5畳、7.5畳、4.5畳、4.5畳) (洋室:13、8.5)、2階LDK約20、3階LDK約26、FP工法の機密性能のよい住宅です
-
専有面積
-
-
バルコニー面積
-
-
その他面積
-
-
駐車場
-
-
管理費
-
-
修繕積立金
-
-
現況
空家
-
仲介手数料
825,000円
-
印紙代
10,000円
登記費用、不動産取得税別途
-
おすすめ条件
-
-
学校区
刈羽小学校(662m)・刈羽中学校(801m)
-
設備
角地、日当り良好、LDK15帖以上、駐車3台以上可能、南向き、システムキッチン、IHクッキングヒーター、追いだき機能付き、温水洗浄便座、トイレ2か所以上、シャワー付き洗面台、エアコンあり、オール電化、上水道、下水道、ウォークインクローゼット、全居室収納あり、2世帯向き、別荘、事業向け
-
取引態様
専任
-
情報登録日
2025/11/20
-
次回更新予定日
2026/04/20
-
取引条件有効期限
2025/12/31
備考
FP工法の機密性能のよい家です
取扱い会社
八幡開発株式会社
Copyright(C)柏崎不動産業協会.
All Rights Reserved.