物件画像を詳しく見る

人気の半田住宅団地内「もみの木の家」築浅、少人数世帯向けオール電化2LDK.
物件概要
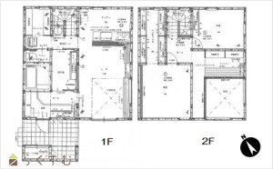
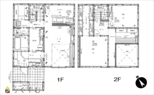
玄関収納、パントリー、クローゼットは収納たっぷりですっきり片付きます。
-
物件コード
00050-200385
-
物件名
半田2丁目
-
交通
駅:信越線 茨目駅から徒歩12分、バス:半田西から徒歩3分
-
所在地
新潟県柏崎市半田2丁目27-17
物件へのルート表示
-
物件種別
中古一戸建て
-
構造
木造
-
階建
地上2階建
-
建ぺい率/容積率
70%/200%
-
建物面積
100.19㎡
/30.3坪
-
土地面積
217.22㎡
/65.7坪
-
築年月
2021年10月(築4年)
-
入居時期
相談
-
用途地域
無指定
-
地目
宅地
-
都市計画
非線引き都市計画区域
-
形状
間口 13.11m × 奥行 16.45m
-
道路
柏崎市道:除雪有
-
私道
-
-
その他の制限
-
物件詳細情報
-
所在階/階数
-
-
号室
-
-
販売価格
28,000,000円
-
方位
南東
-
間取り
2LDK (洋室:8、6)、LD11
-
専有面積
-
-
バルコニー面積
-
-
その他面積
-
-
駐車場
-
-
管理費
-
-
修繕積立金
-
-
現況
居住中
-
仲介手数料
990,000円
-
おすすめ条件
-
-
学校区
半田小学校(510m)・鏡が沖中学校(1,676m)
-
設備
日当り良好、閑静な住宅街、長期優良住宅、設計住宅性能評価付、耐震基準適合証明書あり、新築時図面あり、全室フローリング、築10年以内、駐車3台以上可能、TVインターホン、複層ガラス、システムキッチン、カウンターキッチン、IHクッキングヒーター、食器洗浄乾燥機、追いだき機能付き、バス1坪以上、温水洗浄便座、シャワー付き洗面台、エアコンあり、オール電化、上水道、下水道、全居室収納あり
-
取引態様
一般
-
情報登録日
2024/11/16
-
次回更新予定日
2026/04/19
-
取引条件有効期限
2025/05/31
備考
内覧ご希望の方は、事前にご連絡ください。
取扱い会社
八幡開発株式会社